1º Lugar do Concurso para o Campus Cabral da UFPR – STUDIO ARTHUR CASAS
_________________________________________________________________________
Autor e Responsável Técnico: ARTHUR DE MATTOS CASAS – São Paulo – SP
Co-Autores: Raphael Azevedo França, Pedro Ribeiro, Joana Garcia de Oliveira, Gabriel de Andrade Ranieri, Roberto Cabariti Filho, Maria de Magalhães Ferreira Alves, Marcela Allegrini Munizn e Giulia Koeler.
Colaboredores: Rodrigo da Costa Tamburus e Daniela Garcia Diniz.
Consultores: Acústico, Conforto Ambiental, Sustentabilidade, Iluminação: GreenWatt; Orçamentos: i9conceitos Estrutura: Stec do Brasil Eng. Ltda; Fundações: Apoio; Fechamento em madeira: Engetrel
O Concurso para o Novo Campus Cabral antes de ser apenas objeto para um projeto de espaço universitário em Curitiba levanta um profundo questionamento sobre a abordagem de concursos públicos no Brasil. A intenção de nossa equipe em participar desse concurso foi de enfrentar o exercício de criar espaços públicos de qualidade a um custo moderado inseridos num contexto urbano extremamente dinâmico. Entretanto no decorrer desse exercício o próprio programa apresentado pela UFPR demonstra profundas contradições entre qualidade, densidade e planejamento.
Este projeto tenta manter-se o mais fiel possível às demandas do programa, porém questiona o quesito de ocupação total do potencial construtivo do terreno em duas fases. Acreditamos que existe incoerência em revindicar a permanência de uma arquitetura histórica por razões afetivas e exigir uma densidade que oprime e descontextualiza essa mesma arquitetura. O que propomos são opções no que diz respeito à segunda fase do programa e a defesa de uma primeira fase que possua harmonia com o contexto não apenas do edifício histórico, mas, sobretudo com a paisagem de Curitiba.
Sem dúvida a característica mais particular do terreno é sua posição entre diversas praças que geram um contexto de grande qualidade. Acreditamos que a leitura do campus engloba esses espaços públicos, em especial a praça Brigadeiro General Eppinghaus, assim que decidimos ter na primeira fase um volume simples, monolítico, situado na borda do terreno da Universidade, porém no centro do perímetro expandido dos parques. Desta maneira a inserção na paisagem é a menos agressiva possível, tornando o monolito um pano de fundo que preserva por um lado uma leitura clara do edifício histórico, e por outro estabelece uma relação discreta com o bairro residencial do entorno e cria um sóbrio jogo de luz e sombra com as árvores do local.
O programa estabelecido tende à organização de uma massa compacta visto o grande número de espaços comuns. O aproveitamento de vistas da paisagem e a inserção no contexto, além da economicidade da obra reforçam a opção por um volume condensado. Entretanto a posição desse volume não deve ser negativa para a relação tanto do edifício histórico como do resto do terreno com os parques. Esse monolito torna-se em corte um corredor que conecta uma rede de percursos que ligam os parques e o edifício histórico. O declive do terreno é aproveitado para o desenho desse corte
A otimização de elementos naturais como luz e ventilação, além do enriquecimento do percurso arquitetônico nos levou a criar pátios e reentrâncias nesse volume, trazendo leveza e dinamismo à massa. Quanto aos percursos de veículos, ciclistas e pedestres, consideramos que as ruas do perímetro imediato do terreno possuem tráfego rápido, o que nos leva a ter um percurso no interior do campus que tenha a menor interferência no fluxo atual do bairro. Uma via interna é assim criada, com espaços específicos de carga/descarga, estacionamentos descobertos na face oeste do terreno e estacionamento subterrâneo sob o volume. A rede de ciclovias atravessa o terreno em paralelo a via interna e o estacionamento para bicicletas está em local privilegiado perto da zona de convivência coberta. O percurso dos pedestres é enriquecido pelo rico paisagismo proposto, desníveis que geram um cenário espacial interessante e o estabelecimento de um fluxo natural entre os parques e o campus que pode ser considerado uma extensão desses parques.
A taxa de ocupação de 40% estabelecida pela lei junto com a exigência de um coeficiente 2 para a densidade final do campus dificultam uma implantação satisfatória na segunda fase. Manter o edifício histórico implica perder um potencial de ocupação que não podemos desperdiçar. Não entraremos no mérito de manter ou não o edifício histórico, apesar de nos parecer uma decisão polêmica nesse sentido seguimos à letra a demanda do programa, entretanto uma segunda fase com um volume construído de 16 mil metros quadrados não parece ser fruto de uma leitura sensível do terreno e sim uma vontade de aproveitar um potencial construtivo a todo custo. Ora, cabe justamente às instituições públicas não obedecer a uma lógica especulativa e estabelecer exemplos para a sociedade onde a qualidade espacial e funcional é muito mais relevante que os metros quadrados a construir.
O próprio programa ao ser vago na definição da segunda fase, estabelecendo um hipotético quarto departamento, restaurante universitário e extensão das atividades existentes, revela o intuito de aproveitar o potencial construtivo acima daquilo que o terreno deveria comportar. A legislação que limita a seis pavimentos o gabarito do terreno prejudica ainda mais essa segunda fase. De maneira a respeitar o edital do concurso apresentamos um plano de massa que responde à legislação e ao programa, entretanto afirmamos que somos contra a construção da segunda fase nesses termos e apresentamos soluções paralelas que acreditamos estarem de acordo com o terreno, a paisagem e a cidade.
Clique na galeria para visualização ampliada das imagens.
ARQUITETURA
Um equipamento público voltado à educação possui demandas contraditórias: por um lado espaços ricos de convivência, com luz abundante e amplo contato com o exterior, por outro salas onde a acústica e a iluminação são extremamente bem controladas, protegidas das variações exteriores. O rico programa do Concurso para o Campus Cabral aumenta a complexidade da arquitetura pela enorme diversidade de atividades e compartilhamento dos espaços.
Como mencionado anteriormente optamos por um novo volume construído denso e monolítico, fruto de uma longa reflexão sobre o programa e a legislação. Entretanto a lógica arquitetônica do edifício está mais relacionada com os vazios e espaços intersticiais do terreno e do edifício que com o programa em si. Um espaço voltado à criatividade precisa necessariamente ser diversificado, gerando curiosidade e casualidade. Acreditamos que tão importante quanto a sala de aula que permite concentração e serenidade, são os espaços que não possuem um uso específico, aparentemente residuais, mas que na verdade se prestam à toda liberdade que as Artes, Comunicação e o Design devem estimular.
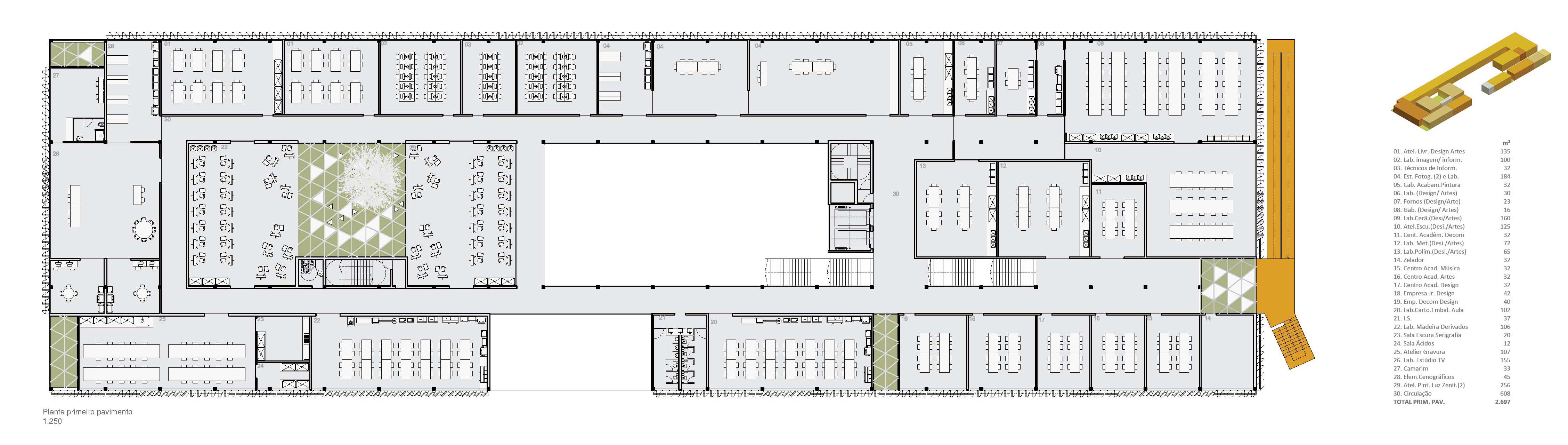
Obedecendo ao programa do Concurso dividimos em blocos separados os espaços pedagógicos do MAE e da Televisão e Rádio Universitária. Nos pareceu evidente reutilizar o edifício histórico para as duas últimas funções. Respeitando a arquitetura simétrica do edifício e o dividindo em duas áreas temos uma ala para o MAE com um novo subsolo para a reserva técnica, e uma ala para a Televisão no térreo e Rádio no primeiro andar. Essas atividades permitem uma reutilização racional do espaço da casa, apesar da forte intervenção gerada pelo novo subsolo criado para o MAE. No espaço onde hoje existe o auditório central criamos um anfiteatro a céu aberto, restituindo a arquitetura original do edifício e valorizando o pátio interno.
A diferença de cotas entre o edifício histórico e o limite sul do terreno permitiram um remanejamento do mesmo que cria uma nova topografia rica nas relações entre o novo e o existente. Para contornar as exigências do programa que possui várias atividades no térreo e tirar partido da topografia, criamos um térreo inferior e um térreo superior, ambos acessíveis por rampas para um transporte fácil de materiais pesados e deslocamento do público.
O térreo inferior exprime bem a continuidade entre o parque e o interior do terreno. Utilizamos uma arquitetura porosa, onde o verde penetra o edifício e as perspectivas o atravessam com facilidade, conectando os dois espaços. Na extremidade leste temos a biblioteca que se desenvolve em dois níveis com um amplo pé-direito. Em frente à mesma encontra-se a área de convivência coberta que concentra os fluxos desse pavimento. Apesar de poroso, o térreo inferior pode ser completamente fechado quando o campus não estiver funcionando, permitindo um esquema de segurança simples e oferecendo um vasto espaço público que pode ser utilizado de maneira permanente pelos curitibanos
Em torno do espaço de convivência coberto está localizada a cantina na face norte, aberta para o centro do terreno, os espaços de circulação vertical com vista panorâmica para o pátio interno e o estacionamento para bicicletas na face sul, valorizando esse tipo de transporte para os frequentadores. A área de convivência descoberta está sob o átrio do pátio, com luz abundante e conexão visual com o paisagismo interno e o parque. Blocos funcionais se situam ao sul. Na extremidade oeste do edifício um bloco concentra os auditórios e espaços expositivos, assim como o foyer com iluminação zenital e banheiros. As rampas de acesso ao estacionamento no subsolo aproveitam a inclinação dos auditórios.
A lógica que permeia todos os andares fica mais clara a partir do térreo superior. O edifício possui as atividades concentradas no perímetro, com uma circulação interna em torno de átrios protegidos. O programa fica mais leve conforme os pavimentos vão subindo, trazendo novos pátios e criando espaços intersticiais de convívio. No eixo sul de circulação uma grande escada conecta os pavimentos, evitando assim o uso desnecessário de elevadores. Os mesmos são panorâmicos e estão situados no eixo leste do edifício junto com as escadas de incêndio. Um outro bloco de fuga está situado no eixo oeste.
No térreo superior estão situadas várias atividades mútuas entre os departamentos no programa, predominantemente o departamento de Design e o departamento de Artes. Por essa razão situamos os dois departamentos no pavimento imediatamente superior, facilitando o fluxo dos utilizadores. Se no térreo inferior temos um grande pátio central, no térreo superior um segundo pátio surge sobre o foyer, no primeiro pavimento um terceiro pátio é criado acima dos ateliers no leste do edifício. O corte longitudinal do edifício demonstra claramente esse desenvolvimento dos pátios e a riqueza espacial decorrente.
Os espaços de convivência aparecem claramente nesse piso, tornando cada pavimento único. No segundo pavimento estão situadas as salas de graduação utilizadas por todos os departamentos assim como os espaços para aulas de música. Seguindo a mesma lógica de racionalização de fluxos e economia de energia, temos esse pavimento entre os departamentos de design e artes abaixo e comunicação acima.
A flexibilidade da estrutura está claramente demonstrada no terceiro pavimento, onde o programa estabelece espaços menores mais adaptados a salas menos largas. Nesse caso a circulação passa para o eixo do bloco em vez de estar no perímetro dos pátios internos. Na extremidade leste temos a administração geral e a administração do departamento de comunicação, ambos com um acesso fácil para o quarto pavimento onde estão as administrações dos outros departamentos assim como as salas de todos os docentes.
A cobertura do edifício também é utilizada como grande espaço de convivência, com vistas generosas para a cidade e os parques adjacentes. Grande parte dessa cobertura é tomada por painéis fototérmicos assim como lajes plantadas que captam água da chuva.
O subsolo do edifício tira partido da trama existente, reforçando a economicidade da proposta. As vagas de estacionamento posicionadas além do limite do edifício permitem a circulação dos carros sem uma laje de transição. A iluminação natural é reforçada por grelhas posicionadas nesse avanço das vagas, assim como por rasgos na área de convivência descoberta do pavimento inferior.
O corte perspectivado talvez seja a melhor síntese dessa proposta. Nele percebemos que densidade não implica monotonia, e monolito não significa indiferença às pessoas e à paisagem. Os percursos são ricos, a luz e a ventilação natural abundantes. Cada andar possui sua identidade, enriquecendo um todo coerente que não deixa de ser extremamente flexível, adaptando-se constantemente a evolução das disciplinas que abriga.
ESTRUTURA
A estrutura do edifício foi pensada visando a economicidade da obra, rapidez na construção e facilidade no gerenciamento. A organização do cronograma e a necessidade de relocar as atividades existentes no campus atual nos levou a optar por elementos que em sua grande maioria são industrializados ou pré-fabricados, utilizando excepcionalmente estruturas moldadas in loco em pontos específicos da estrutura.
Utilizamos aço e concreto, porém gostaríamos de salientar que não se trata de uma estrutura híbrida, o aço é utilizado apenas nos pontos onde os vãos são maiores. A racionalidade da trama permite que a maior parte do edifício possua estrutura em concreto, a mesma sendo pré-fabricada apresenta uma rapidez de construção e controle de qualidade comparável a de uma estrutura que fosse inteiramente feita de aço, entretanto com um custo muito mais reduzido.
No subsolo optamos por contenções por meio de contraforte e blocos de concreto, acreditamos ser a melhor solução, que deverá ser confirmada após a análise das sondagens geotécnicas. Sobretudo queremos evitar a cravação de perfis, tirando partido do fato que não temos construções limítrofes ao nosso projeto, podendo assim executar taludes e reaterrar após a concretagem do térreo. Os pilares serão todos em concreto assim como a maioria das vigas de coroamento, onde possuímos vãos menores. Como descrito anteriormente, teremos vigas em aço nos vão maiores, nos permitindo ter esbelteza e melhor adaptação a esforços grandes. Propomos também vigas intermediárias de aço que permitem a utilização de lajes pré-moldadas em painéis treliçados auto-portantes, dispensando cimbramentos e resultando em uma estrutura com valores reduzidos no que se refere ao escoramento de lajes.
No edifício existente a estrutura será refeita no interior com a criação de um novo subsolo e escoramento das fachadas, com estrutura interna em concreto e aço, respeitando a modularidade existente.
Acreditamos que a proposta estrutural de nosso projeto é clara e econômica. Os vãos foram pensados para dar uma grande flexibilidade no arranjo de todos os andares, permitindo uma fácil adaptação no futuro, garantido a perenidade do edifício.
SUSTENTABILIDADE
O projeto para o novo campus Cabral integra a sustentabilidade em aspectos que vão além do objetivo de ter um edifício eficiente do ponto de vista energético. A organização do programa em um volume denso é o primeiro passo para um edifício sustentável de maneira holística. O monólito nos permite economizar energia, tempo de construção, material e superfície de fachada.
Os deslocamentos internos são facilitados pelas curtas distâncias entre as atividades, privilegiando o uso das escadas. A implantação do edifício tira proveito do sol, da ventilação e da presença dos parques no entorno imediato. O sistema de fachada proposto permite ao edifício adaptar-se às grandes variações climáticas de Curitiba, além de garantir um eficiente controle no aporte de iluminação das salas.
Propomos um sistema de pele dupla, com uma generosa fachada de vidro que traz transparência para os espaços e valoriza a vista para os parques que circundam todo o terreno. A paisagem é presença constante no interior do edifício. Essa fachada por sua vez possui um segundo envelope feito por painéis pivotantes de madeira laminada colada do tipo Pinus, material altamente resistente e oriundo de plantações certificadas, adaptando o aporte de luz e calor de acordo com as variações diurnas e sazonais. Este sistema de pele dupla garante uma enorme eficiência energética ao edifício.
Privilegiar materiais locais como a madeira e optar por uma trama absolutamente modular nos permitirá ter grande parte dos elementos pré-fabricada, com melhor controle de qualidade, facilidade de manutenção e redução nos custos de fabricação e construção.
A generosidade em luz natural é ampliada pelos pátios internos cobertos, que por um sistema de abertura controlada racionalizam o fluxo de luz e ventilação dentro do edifício.
Propomos em complemento à ventilação natural e à proteção solar dos painéis um sistema de poço canadense. Através da criação de alguns túneis de ventilação enterrados no próprio terreno conseguimos trazer para dentro do edifício ar naturalmente resfriado no verão e aquecido no inverno. Para os dias mais frios pensamos em complemento a esse sistema de poço de ventilação geotérmica a utilização de uma caldeira para aquecimento do ar. A mesma funcionaria com os resíduos orgânicos acumulados nos parques adjacentes e no próprio terreno do campus.
Um sistema de painéis foto térmicos implantados na cobertura do edifício garantem aquecimento gratuito para a água utilizada, além de poder complementar o sistema de aquecimento do ar no inverno.
A massa compacta garante uma grande permeabilidade do solo. No topo do edifício encontra-se uma laje plantada e dentro do mesmo, pátios capazes de absorver grande parte da água da chuva. Parte do escoamento será feita para o pátio central completamente permeável no subsolo, evitando problemas de drenagem que hoje afetam a área
Este projeto possui a pretensão de tornar-se referencia em equipamento educacional sustentável no Brasil. Desde uma estrutura flexível que permite uma fácil adaptação da organização dos espaços no futuro, até a instalação de sensores de movimento e lâmpadas de Led em todas as salas nos permitirão alcançar este objetivo.
SALAS DE AULA
Como já foi mencionado o projeto para o Campus Cabral ambiciona tornar-se um marco no campo da eficiência energética, característica essencial para a consistência de um edifício do século XXI.
Na criação de um complexo edificado sustentável, a gestão da luz natural e luz artificial torna-se central para o desenvolvimento do projeto luminotécnico. Assim, é com base nesta dinâmica de rentabilidade associada à inovação e às novas tecnologias que preside à concepção deste trabalho.
Para a obtenção dos objetivos referidos, torna-se necessário otimizar os graus de apropriação das soluções aos parâmetros exigidos e implementar modelos tecnologicamente avançados. Adequando-os às especificidades dos ambientes a iluminar, promove-se a implementação de tecnologias luminotécnicas detentoras de grandes vantagens econômicas, ergonômicas e ecológicas.
Nas zonas de trabalho e de aulas, as soluções serão de iluminação direta, com máxima eficiência, flexíveis em termos de dimensão e potência otimizadas para os diferentes espaços.
Já nas restantes áreas, uma vez que a funcionalidade é distinta e as exigências em termos de iluminância menor, sugerem-se soluções de iluminação do tipo direta e indireta, mais confortáveis e discretas visualmente, mas capazes de criar ambiências e jogos de contraste.
Aliada a estas intenções formais, a questão da eficiência energética representa um parâmetro fundamental para a decisão dos equipamentos de iluminação neste tipo de espaços interiores, deste modo, as opções luminotécnicas interiores recorrerão à utilização das lâmpadas fluorescentes T5, além do recurso à tecnologia LED que será igualmente determinante em termos de sustentabilidade.
No sentido de uma maior redução de consumo energético, propõe-se ainda o recurso a sensores de dupla tecnologia (presença e iluminância) nos espaços com luz natural e sensores de movimento nos locais de passagem e instalações sanitárias. No que concerne a medição de luz natural, a orientação solar do edifício e a sua fachada com forte relação com o exterior tornam muito propícia o recurso a esta tecnologia.
O condicionamento acústico de instituições de ensino é fundamental e assume-se como um fator crítico de sucesso para o cumprimento da missão educativa. A transmissão de conhecimentos é majoritariamente apresentada por via oral, sendo que o comportamento acústico das salas pode transformar-se num agente facilitador de todo o processo de aprendizagem.
O programa do Campus Cabral define vários tipos de espaços a serem estudados mais profundamente a nível acústico: os grandes espaços comuns aos Departamentos com grande volumetria e sensibilidade acústica; estúdios e laboratórios de produção e pós-produção áudio e vídeo e salas de aulas.
A metodologia geral da intervenção proposta para condicionamento acústico do Campus Cabral será a otimização das soluções construtivas para as necessidades educativas especifica do ensino superior. Passará, inicialmente, por uma análise cuidadosa da localização e distribuição de cada edifício e dos respectivos compartimentos. A definição de critérios e soluções construtivas permitirá cumprir toda a legislação e recomendações técnicas aplicáveis. Dada a especificidade do edifício, poderão ainda ser definidos critérios complementares, adequados à utilização e conceito previsto seguindo recomendações ou normas internacionais. Nestes casos, será efetuada uma análise de custo – benefício de cada solução, sendo todo este processo de escolha e definição de opções efetuadas em estreita colaboração com o cliente. A definição de materiais e técnicas construtivas será adaptada à realidade e potencialidades locais, sendo que a pretensão é aperfeiçoar acusticamente os variados tipos de espaços com estratégias econômicas integradas no conceito arquitetônico.
No caso mais concreto do tratamento acústico da sala de aula tipo da universidade utilizamos painéis em gesso refletores com inclinação de 5 graus que se repetem ao longo do maior comprimento da sala. Apesar de o programa pedir especificamente um painel refletor continuo, concluímos que a nossa proposta, não só é mais eficiente, como ainda economiza espaço de sala e lugares de pranchetas, fato importante num espaço de aula tão reduzido.
No espaço de aula do docente foi utilizado um plano inclinado que visa a reforçar o campo sonoro. Já no forro optou-se pela escolha de elementos suspensos absorventes acústicos com forte caráter gráfico que acabam por imprimir uma identidade às salas de aula.
_________________________________________________________________________
Agradecemos aos autores pela disponibilização do material para publicação.
































belo memorial de justificativas e design de projeto, parabéns!