Atualizado em 21.08.2012

Anunciado no dia 17 de agosto o resultado do Concurso Paço Municipal de Várzea Paulista, veja a seguir os premiados e as menções honrosas e acesse aqui a Ata de Julgamento.
________________________________________________________________________
1º Lugar – Projeto 16
Autores: Éder Rodrigues de Alencar, Cláudio de Sá Ferreira e Nonato Veloso
Colaboradores: Rodrigo Rezende da Cruz e Marcelo de Oliveira e Silva
Brasília – DF
________________________________________________________________________
2º Lugar – Projeto 53
Autores: Rafael Neves e Beatriz Martinhão
Colaboradores: Gustavo Martinhão e Luana Briene
Sorocaba – SP
________________________________________________________________________
3º Lugar – Projeto 13
Autores: Christian Anderson de Almeida Nobre, Cinthia Duclerc Verçosa Nobre e Marlon Rubio Longo
São Paulo -SP
________________________________________________________________________
Menção Honrosa – Projeto 14
Autores: Daniel Maeda, Guilherme Bivar, Laila Siqueira e Michelle Catta-Preta
Colaboradores: Marta Pavão
São Paulo – SP
________________________________________________________________________
Menção Honrosa – Projeto 23
Autores: Gabriel Cruz Grandó, Cristina Martins, Marcos Laurino, Camila Sanvitto, Ítalo Galeazzi, Luis Rocha, Ana Paula Viecceli, Priscila Garcia, Christine Beck, Gustavo Colussi e Angélica Crusius
Porto Alegre – RS
________________________________________________________________________
Menção Honrosa – Projeto 44
Autores: Mario Figueroa e Marcus Vinicius Damon
Colaboradores: Leticia Tamisari, Sabrina Aron, Daniel Chun, Anna Gil Fornaguera, Guilherme Bravin, Aleix Gorgorio, Vinicius Vitoriano
São Paulo – SP
________________________________________________________________________
Para mais informações consulte aqui a página oficial dos concursos.
–
–

























O concurso começa de trás pra frente? As menções são infinitamente melhores que os primeiros lugares..
Resultado foi promulgado e finalizado , ver site do concurso .
O primeiro colocado nº16 foi desclassificado , sendo assim o segundo subiu para primeiro e o terceiro para segundo lugares respectivamente. Sei que o concurso não teve premiação e nem contrato assinado pela administração da prefeitura do ano passado, ficando agora em poder da nova administração…. vai saber o que vai acontecer….
O resultado ficou nisso mesmo? Ou reavaliaram as propostas?
Creio que a proposta vencedora se filia à tradição corbuseriana/brasileira de expressão da monumentalidade em composições analíticas, fundamentada em elementos singulares articulados, neste caso, pela topografia artificial da base. A autonomia dos elementos singulares e a neutralidade da articulação evidenciaram a clareza da composição, sua escala e distinguiram a proposta das demais. Trata-se de uma estratégia familiar à formação e às convicções de parte do júri, compreensivelmente valorizada e pertinente ao programa.
Apesar das variadas falhas, que todas as propostas exibem quando expostas na condição de vencedora, é preciso compreender suas virtudes essenciais. Aprender para ensinar é o que Nonato faz melhor, parabéns Professor, Cláudio e Eder, seguimos aprendendo.
Participei do concurso e reconheço todos os méritos da proposta vencedora.. Uma pena tomar conhecimento desta ligação com membro do juri.. Qualidade certamente o projeto tem, mas abre-se margem para interpretar possíveis favorecimentos no prazo de elaboração, diretrizes.. etc. Mas vejo isso como problemas inerentes a falta de amadurecimento dos concursos de arquitetura no Brasil.. Iniciativas como essa ainda são raras, certamente se o CAU trabalhar por essa nobre causa, a dos concursos, e se os mesmos tornarem-se constantes os processos e procedimentos serão aprimorados, evitando esse tipo de suspeita.
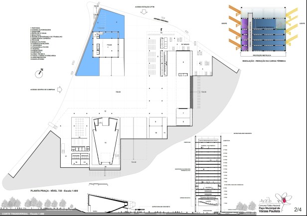
Com relação a proposta vencedora, de fato o projeto trabalhou bem as conexões do terreno, tirou bom partido dos níveis e tem uma estética muito elegante.. Claro q n expor o estacionamento nas imagens e criar aqueles invólucros metálicos para o teatro e a torre ajudaram nessa percepção mas não sei ate q ponto estes revestimentos são interessantes do pto de vista da manutenção e conforto térmico no edifício (faltou detalhe do mesmo nas pranchas) e a “gratuidade” q é utilizado no teatro.. apenas como elemento decorativo..
Também tirei partido da torre no meu projeto e sei o quanto é problemático pensar no fluxo vertical para um projeto com este uso.. e olha q na proposta vencedora ainda incluiu-se os auditórios e plenário dependentes de uso do elevador.. A pergunta: Apenas 2 elevadores são suficientes? (sendo q o terceiro é acertadamente privativo para autoridades) Outra questão: Apenas 2 wcs e 1 pne por pavimento atenderia toda demanda de fluxo? São questões fundamentais para pensar o uso diário da torre..
A implantação do teatro tb achei estranha devido a ideia do palco aberto pouco valorizada, voltando o mesmo para um recuo com poucos lugares sem a possibilidade de explorar uma grande área aberta e público externo maior.
Mas o projeto tem muitas outras qualidades.. o programa foi bem interpretado e atendido, a proposta tem leitura clara e de fato cria uma centralidade e dependendo da manutenção destes elementos de fechamento da torre e do teatro pode ser um conjunto bonito e marco referencial para cidade.
No mais acho fundamental esse debate pós-concurso que este ótimo portal proporciona e espero que estas oportunidades se multipliquem.. este seria um dos maiores retornos do pg da anuidade ao CAU…
Deixo aqui o link da minha proposta, que embora reconheça qualidades e defeitos encarei muito mais como exercício profissional e possibilidade de aprimoramento para propostas futuras;
http://alexcouri.blogspot.com.br/2012/08/paco-municipal-varzea-paulista.html
com certeza o projeto 44 foi o melhor. e apenas ganhou uma menção honrosa…
Colegas.
Os concursos de projeto e seus resultados são, muitas vezes, polêmicos. O concurso de Brasília foi polêmico e gerou boatos sobre a relação Niemeyer e Costa, como sabemos.
Como participante deste concurso para Várzea Paulista, me resta analisar os projetos premiados, observar erros e acertos em cada um deles, assim como realizar uma auto crítica sobre meu projeto.
Sobre o projeto vencedor, discordo de algumas críticas aqui publicadas: qual o real problema em uma torre? Simplesmente por Várzea Paulista (ainda) não possuir edifícios altos?(digo problema técnico/ exato e não ideológico/conceitual). Também não me recordo de nenhum “veto” do edital à um estacionamento semi-enterrado (cn 18,50), haviam se não me engano, sugestões/recomendações. A sustentabilidade é algo ainda tão inexato que fica difícil apontar erros, apesar de que “concretar o lote inteiro” ou criar edifícios laminares voltados para oeste serem acções de projeto um pouco distantes daquelas que podem ser definidas como de “sustentabilidade”.
Portanto, as opiniões sobre os resultados são diversas, por isso ainda acredito ser saudável a realização intensa de concursos, e a criação de espaços democráticos, como esse website, para a troca de idéias.
No resultado deste concurso para Várzea Paulista, não é sobre a qualidade do projeto vencedor que tenho a lamentar, mas a relação entre um dos membros do jurí com os participantes da equipe vencedora, que se não era proibitiva, é ao menos imprópria:
http://www.arqbrasil.com.br/_arq/tao_arq/tao_arq_01.html
http://paulohenriqueparanhos.com/index.htm
Caso esteja enganado, me desculpo antecipadamente.
abraços.
Não se pode deixar de comentar tamanha decepção.
O Brasil, tão carente de infraestrutura de qualidade, desdenha de concursos públicos como esse com significativo número de participantes. Esse resultado não passa de um desrespeito.
Não bastassem todos os problemas do projeto vencedor, a Comissão Julgadora apresenta uma ata vaga, sem justificativas plausíveis, sem análise propriamente dita dos projetos vitoriosos.
Fora isso, o edital foi desrespeitado várias vezes ao longo do concurso, como, por exemplo, não houve ato público para identificação dos projetos e divulgação do vencedor.
Estamos falando de uma licitação, de destinação de dinheiro público, o que exige responsabilidade e comprometimento dos responsáveis.
Diante de tantas irregularidades, não há como não questionar a vitória de uma equipe intimamente ligada ao julgador Paulo Paranhos.
Não deveria constar na ata da avaliação o parecer do Juri por cada um dos trabalhos classificados na ultima triagem? Qual o motivo de considerar este e não aquele o melhor projeto? Pra começar uma discussão isso já está de bom tamanho…
Mario,
Agradeço pela informação. Publicamos acima a Ata de Julgamento.
abs
Fabiano Sobreira
olá fabiano, a ata do juri já está a disposição no site do concurso. se puder publicar aqui também
seria muito bom para todos entenderem os critérios de julgamento e os motivos das escolhas. um grande abraço.
É extremamente duvidoso o resultado desse concurso, um projeto como Laurent ressaltou acima, com erros grotescos na sustentabilidade, dois estacionamentos com acesso a via principal, de maior movimento da cidade além do teatro ter sua platéia colada na avenida, ou seja, em dia de eventos vai parar com a circulação principal do município. Um torre de 18 andares em uma cidade onde não há prédios altos, e um estacionamento em subsolo, que foi vetado no edital.
Uma série de erros que não justificam um 1º lugar, há projetos melhores que esse nas demais posições.
Onde está a ata da comissão julgadora? Por que nao foi respeitado nem os critérios do edital para a escolha do projeto vencedor.
O problema é ter conhecimento da parceria intima e em diversos projetos/concursos recentes do membro Paulo Paranhos da comissão julgadora e da equipe vencedora, e ver um projeto tão falho ganhando um concurso desses.
Uma decepção.
Parabéns, Natinho!!!!
Já havia dito: depois de tantas na trave, qualquer hora entra.
J. E. F.
Aos participantes do concurso, gostaria de saber se após o momento do envio dos trabalhos pelo ftp cedido a cada um, receberam algum email com garantia que o trabalho foi enviado..
alguém?
Eu diria que o resultado é mais que surpreendente, é vergonhoso…
Que resultado surpreendente!
O edital menciona o caracter “sustentável” que deveria ter o Paço Municipal, mas o projeto vencedor concreta o lote inteiro (até o rio é coberto!), mostra estacionamentos nas plantas mas não nas imagens (claro, não teria ficado tão puro, abstrato e elegante).
A Prefeitura de Várzea Paulista se vende como uma Prefeitura Transparente, com seu portal da Transparência, entre outros. Gostaria de entender como uma tipologia de torre pode criar uma relação rica, transparente e intensa entre a Prefeitura e seus habitantes…