Como parte da seção Obras Construídas, publicamos o projeto do Centro de Recepção de Visitantes construído em Atapuerca, na Espanha, de autoria dos escritórios a3gm e Mata y Asociados. O projeto resultou de concurso aberto, realizado em 2006. A obra foi concluída em 2010.
_________________________________________________________________________
Clique na galeria a seguir para a visualização ampliada das imagens.
Memorial Descritivo
(trechos do memorial do projeto, traduzido pela editoria de concursosdeprojeto.org)
O objetivo do projeto é a criação do Centro de Visitantes do sítio paleo-antropológico dede Atapuerca, na Espanha, e o rearranjo do ambiente com áreas de serviços e relacionamento com o parque arqueológico existente.
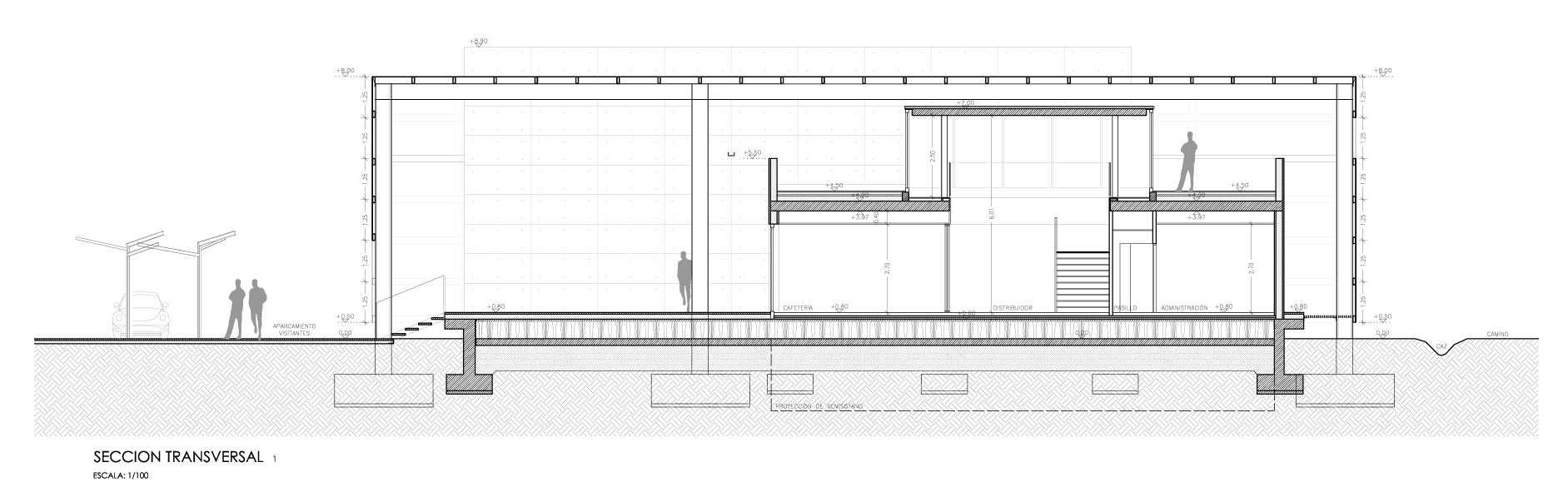
A proposta começa a partir de uma dupla leitura do edifício: a partir de sua presença na paisagem e das suas funções internas. A partir dessa dupla relação, propõe-se a eliminação de barreiras físicas e visuais entre o espaço interno e o externo, que se expande no acesso principal e permite a expansão da lanchonete e a extensão da área de exposição.
A imagem do edifício inicialmente faz referência aos elementos existentes na paisagem envolvente. Nessa relação com o entorno está a percepção do edifício de dentro para fora, assim como a luz direta do sol e o vento, elementos que se somam à logica de um edifício marcado pelos fluxos de visitantes e trocas culturais. As paredes internas são concebidas de maneira a permitir a expansão no espaço intersticial e para permitir a passagem da luz e a permeabilidade visual para o exterior.
O Centro também busca uma relação metafórica com o lugar, o que efetivamente contribui para a produção de um elemento arquitetônico novo, recriando uma parte do prédio como algo que pertence à terra (estereotômica) e outra que é separada e se distingue dela (tectônica), que é uma espécie de máscara protetora, tão leve quanto possível, recobrindo o conjunto. Nesse sentido, o edifício foi projetado como uma caixa de concreto, fazendo referência à pedra como elemento natural, perfurada por clarabóias de grande porte e uma malha perfurada exterior, que envolve e cobre de luz todo o espaço, como uma segunda pele.
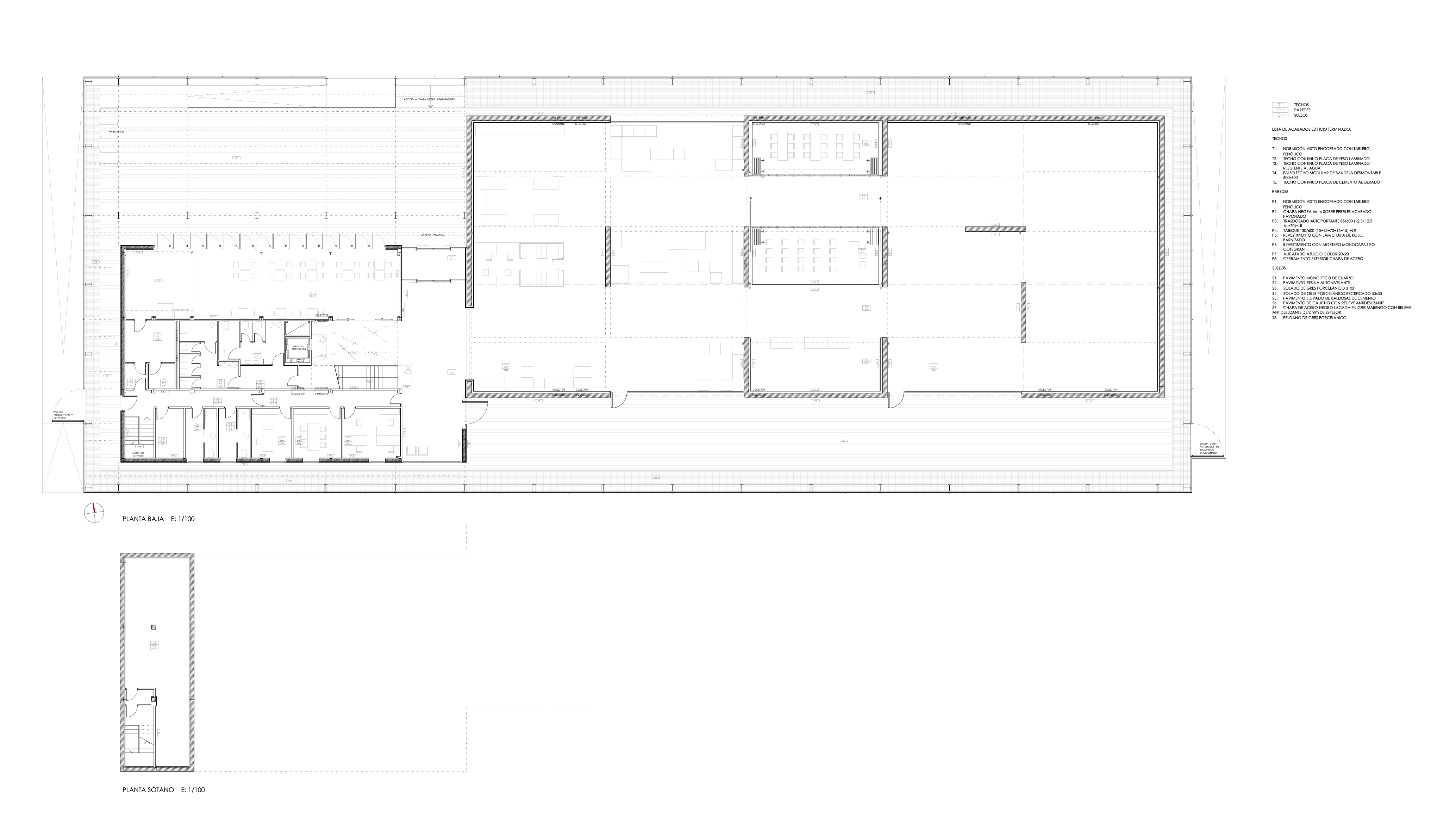
Os espaços intersticiais gerados entre a malha metálica e a caixa de concreto fazem referência ao canteiro onde se realiza o trabalho arqueológico. Com a função de entrada do edifício, esse espaço é concebido também como uma área de descanso e espaço multiuso. Na entrada há também espaços para informações, venda de publicações, cafeteria, além de administração e serviços.
As salas de aula são concebidas como elementos modulares com múltiplas possibilidades de uso, relacionada à área multiuso e o espaço de exposição, podendo se adaptada de um conjunto de pequenas salas para cerca de 25 pessoas até uma sala de conferências para 100 pessoas.
O invólucro exterior leve tem um caráter descontínuo, é perfurado ou desaparece em pontos singulares como a entrada. Essa malha gera uma diversidade espacial na área de acesso com relações muito fortes entre o espaço aberto da praça e o espaço do terraço-mirante, em contraste com a austeridade da caixa exterior.
Para resolver a área de estacionamento, em especial para veículos de grande porte, a ideia de relação com a natureza é recriada novamente, desta vez por meio de elementos metálicos, como metáforas de árvores. No futuro a intenção é que os vinhedos cresçam e camuflem parcialmente os veículos estacionados.
Uma cobertura leve e uma grade arborizada entre ele e o edifício vai formar um quadrado exterior para atividades ao ar livre.
Na área externa uma lagoa de macrófitas integra a solução de saneamento, tanto do Centro de Visitantes quanto do Parque Arqueológico próximo. O leito do tanque é um sistema de biotecnologia que imita o processo de auto-purificação que ocorre espontaneamente em zonas úmidas naturais, com base na utilização de plantas e outros organismos aquáticos inferiores. Esse sistema está em perfeita harmonia com as novas políticas e as necessidades de desenvolvimento sustentável, proporcionando alta eficiência e baixos custos de operação e manutenção. A visita à lagoa projetada tornou-se parte do percurso educativo do Centro de Visitantes.
Ficha Técnica
Arquitetos: a3gm + Mata y Asociados
Localização: Atapuerca, Burgos, Espanha
Conceito: Jesús Elías Alba, Laura García Juárez, Jesús García Vivar, Smara Gonçalves Diez, Carlos Miranda Barroso
Projeto e Construção: Salvador Mata Pérez
Colaboradores: Myriam Vizacaíno Bassi, Javier Hernández Encinas, Alberto López del Río, David Muñoz de la Calle, Luis Antonio Pahíno Rodríguez, arquiteto R. Tomás Dientes, arquiteto Técnico Quantity surveyor.
Engenheiros: GHESA, A2V Ingenieros
Engenharia Ambiental: HYDRA
Investidor: Junta de Castilla y León. Consejería de Cultura y Turismo. Dirección General de Patrimonio Cultural
Área do Projeto: 1.625 m²
Status: construído
Ano do Concurso: 2006
Ano de Construção: 2009-2010
Empreiteiros: SACYR SAU, NUCLEO SA
Orçamento: 3.500.000 €
Fotografias: Juan Ayala _________________________________________________________________________
Agradecemos aos escritórios a3gm e Mata y asociados pela disponibilização do projeto para publicação.











































