Como parte da seção Obras Construídas, publicamos o projeto do Centro de Saúde construído em Almería , na Espanha, de autoria do escritório Ferrer Arquitectos. O projeto resultou de concurso aberto, realizado em 2007, iniciativa do Governo da Andaluzia. A obra foi concluída em 2010.
_________________________________________________________________________
Clique na galeria a seguir para a visualização ampliada das imagens.
Memorial Descritivo
(trechos do memorial do projeto, traduzido pela editoria de concursosdeprojeto.org)
O centro está estruturado em torno de uma série de pátios internos, que fornecem ventilação e iluminação para as várias salas. Seu exterior tem uma aparência contemporânea, com base em um prisma cerâmico perfurado, que se apoia num bloco com lajes de concreto pré-fabricados.
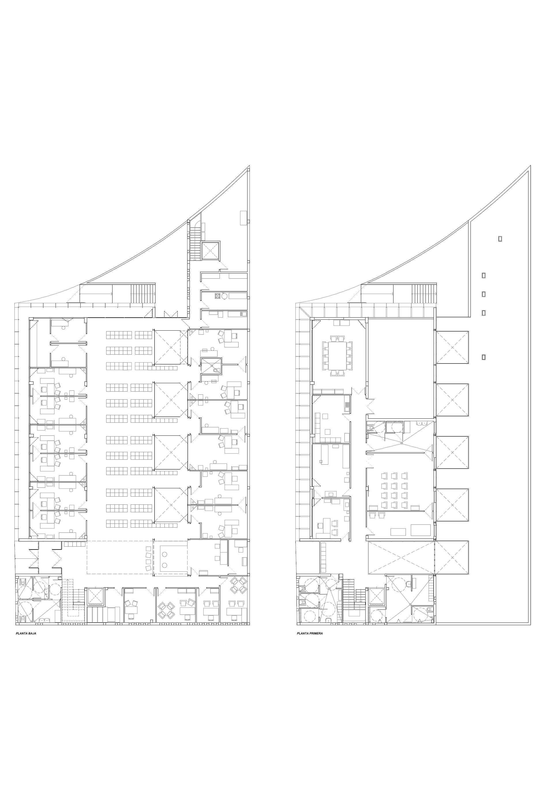
O piso térreo contém a entrada e área de recepção, juntamente com uma área de administração, a clínica geral, a clínica de cirurgia menor, a clínica pediátrica e também os serviços de apoio. O primeiro andar é a casa de saúde, educação, a sala de funcionários, além dos serviços de apoio.
A fachada apresenta uma solução de construção em pele dupla construída com peças de mármore que permitem a introdução de luz natural de forma difusa e indireta. Isso cria uma atmosfera interna que reduz o consumo de energia do edifício, contribuindo assim para a sustentabilidade ambiental.
Ficha Técnica
Projeto: Ferrer Arquitectos
Projeto Certificado pela AENOR em Gestão da Qualidade, Gestão Ambiental e Saúde Ocupacional e Segurança (ISO 9001 – ISO 14001 e OHSAS 18001)
Nome do Projeto: Centro de Saúde do Norte do Mediterrâneo
Localização: Almería – Espanha
Fotógrafo: David Frutos
Cliente: Governo de Andaluzia
Contratado: Construcciones Tejera
Área Construída: 1.352,38 m²
Data da Conclusão: 2010
_________________________________________________________________________
Agradecemos ao escritório Ferrer Arquitectos pela disponibilização do projeto para publicação.










