A FIRJAN (Federação das Indústrias do Rio de Janeiro) promoveu um concurso nacional (lançado em abril/2012) para selecionar o melhor projeto para a “Casa FIRJAN da Indústria Criativa“, um “centro cultural e de Formação Profissional para diversos segmentos da Indústria Criativa, como Moda, Design, Teatro, TV, Audiovisual, Cinema e Games, além de espaço para atividades culturais e articulação empresarial”.
O concurso, de abrangência nacional, foi realizado em duas etapas. Participaram da primeira etapa 32 propostas. Um júri técnico, formado pelos arquitetos Andréa Borde, Anibal Sabrosa, Jorge Hue, Olga Campista, Paulo Bellinha e por dois representantes da FIRJAN, escolheu 8 projetos para a etapa seguinte. A segunda etapa foi uma apresentação oral para um júri empresarial, formado por membros da FIRJAN, que escolheu os 3 finalistas: Lompreta Nolte Arquitetos, Mareines & Patalano e Insite Arquitetos.
A apresentação final dos finalistas foi novamente para o júri empresarial da FIRJAN, no dia 06 de setembro, e teve como vencedor o escritório Lompreta Nolte Arquitetos.
_______________________________________________________________________
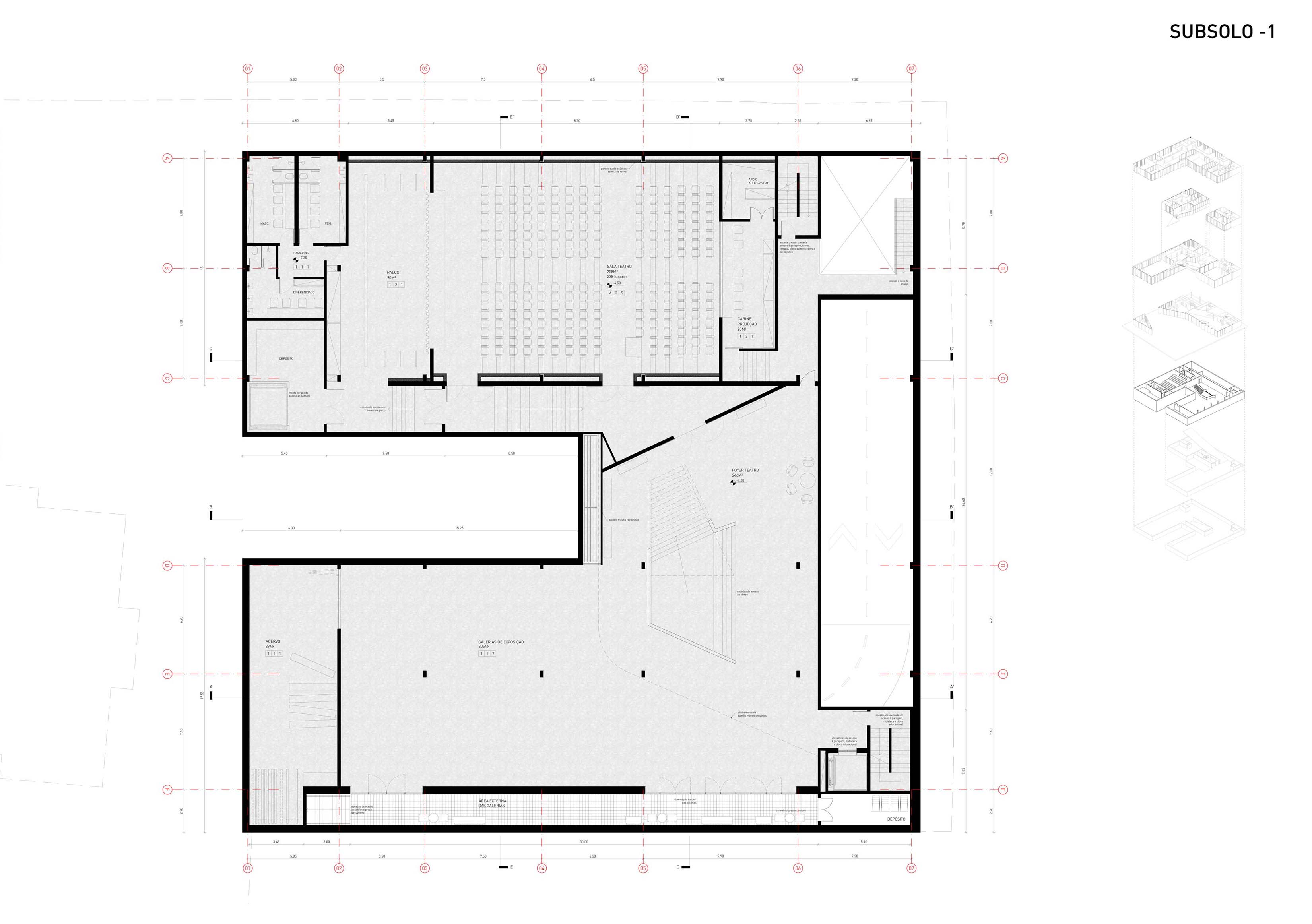
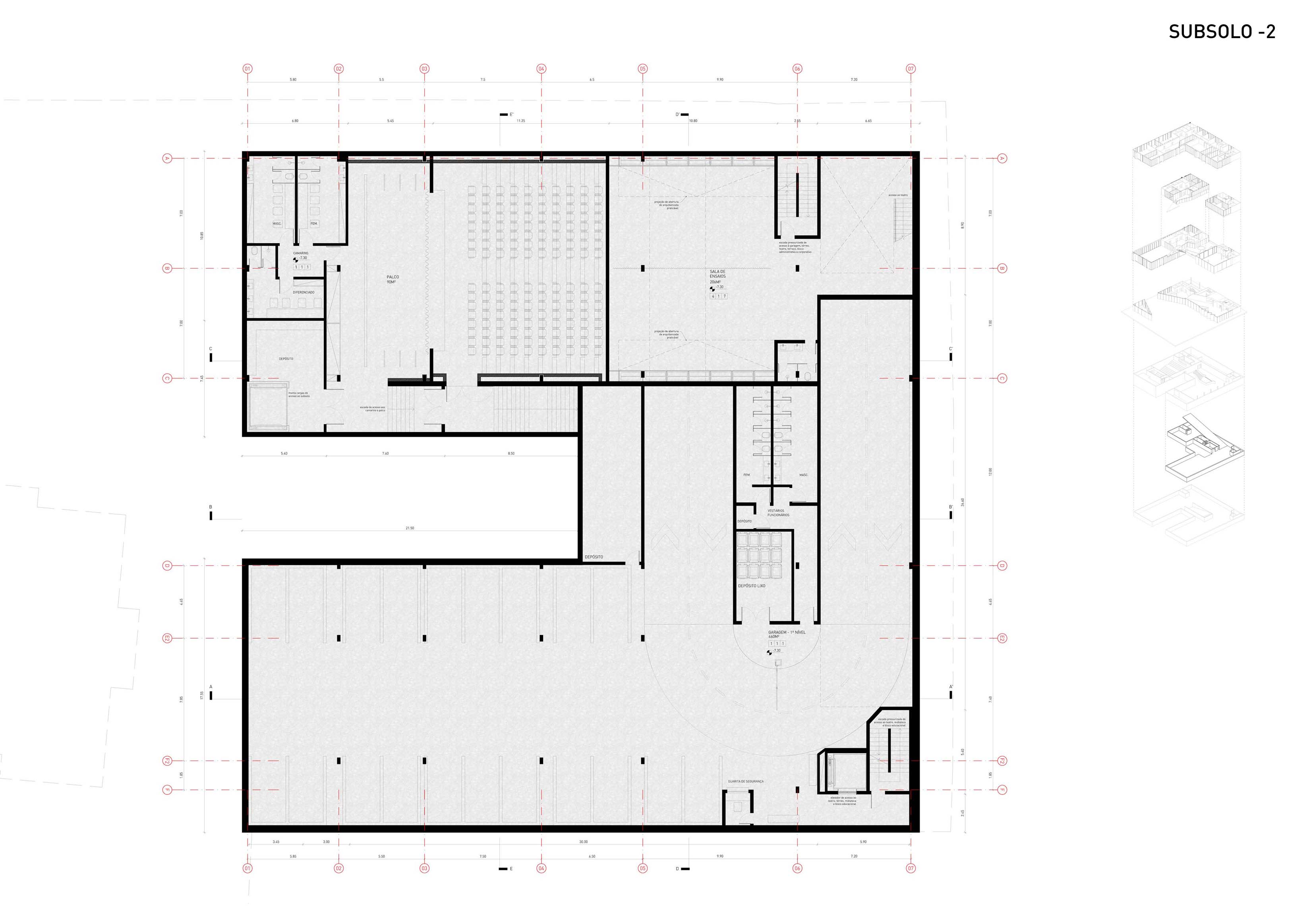
Veja a seguir o projeto vencedor:
Clique na galeria a seguir para a visualização ampliada das imagens.
_______________________________________________________________________
Veja a seguir o vídeo do projeto vencedor:
_______________________________________________________________________
Resumo da Proposta (texto fornecido pelos autores do projeto)
A CASA FIRJAN da Indústria Criativa é um equipamento educativo e cultural que será construído no bairro de Botafogo, Rio de Janeiro. Será uma plataforma da Indústria Criativa, um “Hub”, que conectará todos os agentes da Indústria Criativa em um único espaço, e com isso promoverá a interatividade e o estimulo aos negócios.
A Indústria Criativa é composta por diversas disciplinas, como Cinema, Teatro, Design, Moda, Web e Televisão. A sua produção ocorre em processos criativos que necessitam de redes, parcerias, trocas, conexões entre e através de atores e setores diversificados.
Para alcançar este resultado e estimular a interação entre as disciplinas, o projeto arquitetônico gera um espaço que conecta seus setores, evidencia as atividades, se abre para os fluxos e para as áreas públicas e conecta seu interior com o exterior, criando visibilidade, interação e aprendizagem.
A CASA FIRJAN será inserida em um local privilegiado de Botafogo, bairro movimentado, onde o terreno para implantação do projeto forma um espaço de desaceleração da intensa malha urbana do bairro, onde a presença do Palacete Lineu de Paula Machado e sua arborização centenária geram um ambiente de reflexão e contemplação.
O conjunto arquitetônico da CASA FIRJAN da Indústria Criativa será composto pelo Palacete Lineu de Paula Machado, as Casas Geminadas e o novo edifício. Neste contexto este novo edifício será o maior espaço construído do conjunto e receberá grande parte das atividades.
A implantação da CASA FIRJAN foi projetada com intuito de preservar algumas das árvores que formam a principal ambiência do Palacete, além de criar uma praça interna mais reservada no terreno. A praça interna gera um espaço livre entre o Palacete e o novo edifício, de forma que fique preservada a legibilidade de cada um dos edifícios evidenciando a sua época de construção.
O novo edifício da CASA FIRJANé composto por dois blocos com dimensões apropriadas para criar um diálogo proporcional com o volume existente do Palacete. Esses dois blocos são conectados no primeiro e no último pavimento gerando um fluxo contínuo no edifício além da interação entre os diferentes setores do espaço. A simplicidade formal do novo edifício mantém o Palacete na sua posição de protagonista no conjunto arquitetônico.
_______________________________________________________________________
Ficha Técnica
Autor do Projeto – Lompreta Nolte Arquitetos
Parceria – Atelier 77
Localização – Rio de Janeiro, Brasil
Área do Projeto – 8.000m²
Equipe do Projeto – Thorsten Nolte, André Lompreta, Rodrigo Bocater, Paula Lago Pereira, Nanda Eskes e David Serrão
Consultores – Sergio Raposo (Diretor de Vídeo) e Rafael Passos (Renderizações de Vídeo)
*Veja também o site oficial do concurso e um vídeo relacionado.
_________________________________________________________________________
–
–

























