Como parte da seção Obras Construídas, publicamos o projeto da Escola Flor do Campo construída em Bolívar, na Colômbia, de autoria de Giancarlo Mazzanti + Felipe Mesa. O projeto resultou de concurso aberto, realizado em 2007. A obra foi concluída em 2010.
_________________________________________________________________________
Clique na galeria a seguir para a visualização ampliada das imagens.
Memorial
(texto fornecido pelos autores e traduzido pela editoria de concursosdeprojeto.org)
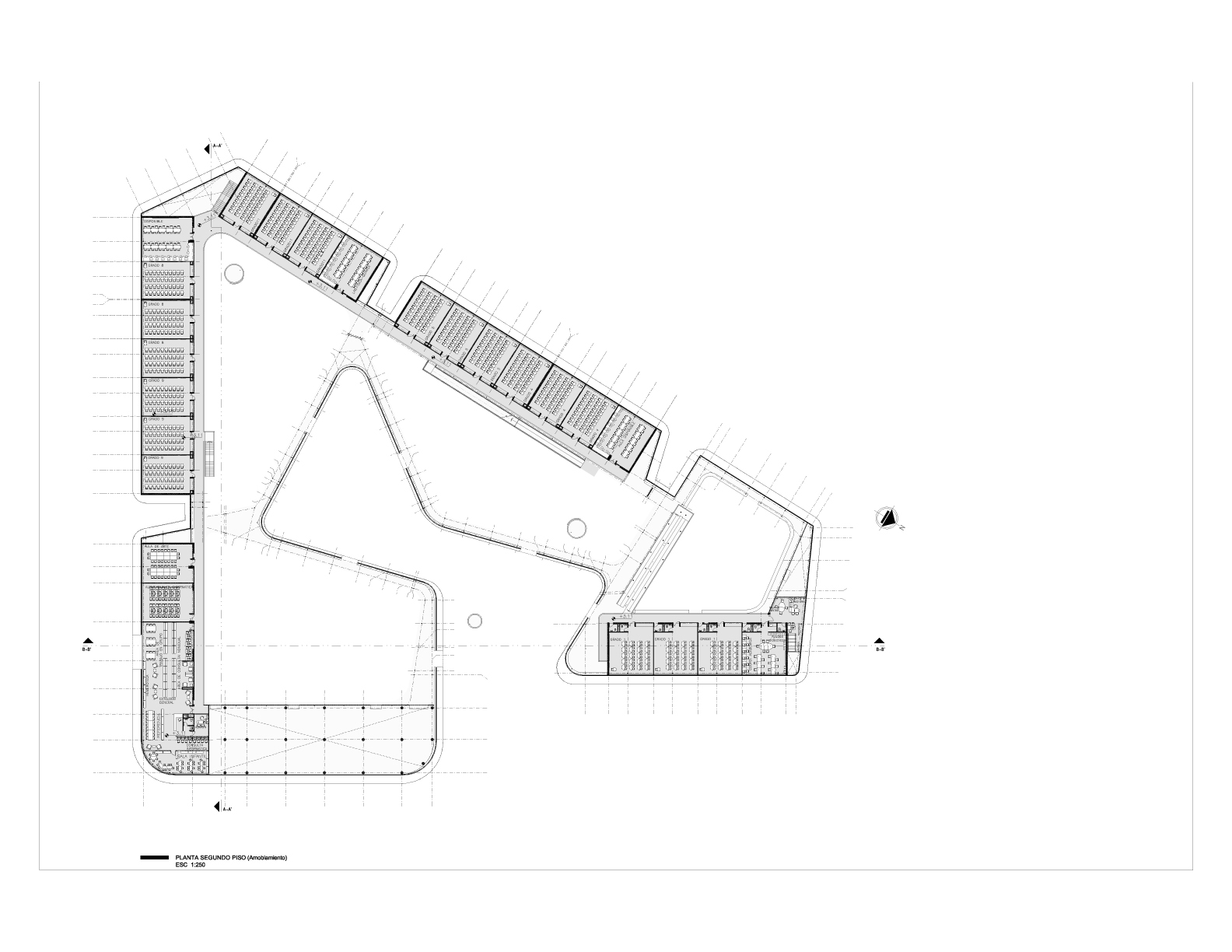
1. ANÉIS
Este projeto surge da relação de quatro configurações que chamamos “anéis”. Cada um dos anéis é definido por um perímetro de dois níveis, com diferentes espessuras e um pátio verde com atividades. Nesses espaços o perímetro construído é tão importante quanto o espaço vazio e a relação com os outros anéis. Os pátios arborizados sombreiam com diversas espécies de árvores e arbustos nativos e tropicais que podem caracterizar ou sugerir atividades que serão ali realizadas: entretenimento, jogos , esportes, intercâmbios educacionais, etc. A imagem projetada é a de uma arquitetura colorida, sinuosa, leve e tranquila.
2. REFERÊNCIAS
a. Os diagramas das teorias de conjunto, em que grupos de elementos têm um perímetro de contato com outros grupos que lhes permitem áreas de união ou interseção, foram tomadas como referência para entender as relações programáticas com outro anel, sua independência e atividades individuais.
b. Nos tecidos biológicos, o agrupamento de células, que intercambiam matéria e energia através de suas membranas, mantendo a sua configuração geral independente. É o agrupamento de várias células que permite a criação do tecido, neste caso, um tecido arquitetônico.
3. ESPAÇO INTERSTICIAL
A relação entre os quatro anéis, a maneira como se articulam à geometria do local e a sua estratégia de ligação definem uma área intersticial e central comunicada com cada um deles. Essa lacuna intermediária é na verdade a continuação do espaço público ao ar livre que dá acesso à escola, e que se introduz nele. Seu comportamento é o de um pátio que pode ser compartilhado por todos os anéis e uma área arborizada e cultivada (como um pequeno jardim botânico), o que atrai a fauna nativa e gera ótimas condições ambientais abrindo possibilidades concretas de educação ecológica.
4. ANÉIS (programa e funcionamento)
Cada um dos anéis tem um núcleo programático em dois níveis ligados por um ponto de circulação vertical adjacente ao seu pátio, e interligado com os outros anéis por passagens cobertas.
a. Anel do CIRE (Centro Integrado de Recursos)
Localizado no lado sul-oriental do terreno e dando forma e acesso à escola, o perímetro desse anel envolve o campo múltiplo, que por sua vez pode ser usado como pátio de bandeiras, reunindo toda a escola ou uma parte dela. É nesse grupo programático – que é a parte mais pública do conjunto – onde se situam também os serviços gerais, espaço que pode funcionar de forma independente e com acesso de carga e descarga.
b. Anel da PRÉ-ESCOLA
Em companhia ao anel do CIRE, define o acesso para o espaço intersticial da escola. Seu primeiro andar acomoda salas de aula do grau 0 e brinquedoteca, e no segundo piso as sala de aula do grau 1. As áreas administrativas se distribuem nos dois pisos deste anel. Funciona com certa independência do resto da escola, embora de forma eficiente se conecta a outras áreas do programa. Possui acesso imediato a partir da praça pública exterior, permitindo à administração controlar o acesso à escola, e que os pais possam acessar em momentos diferentes para as crianças mais novas. O pátio interior é uma área controlada para o jogo de crianças mais pequenas como uma extensão da brinquedoteca e permite áreas de sombra.
c. Anel da EDUCAÇÃO BÁSICA PRIMÁRIA
Localizado no lado ocidental, em contato com anéis de educação pré-escolar e a básica secundária e mídia. Seu perímetro está localizado em dois níveis, onde se distribui todo o programa de salas de aula, oficinas e serviços necessários. Em seu pátio são plantadas árvores nativas, atratores de fauna variadas, e áreas sombreadas, complementados por um espaço para atividades esportivas dos alunos.
d. Anel da EDUCAÇÃO SECUNDÁRIA E MÍDIA
Este anel está localizado no extremo sudoeste. A configuração é maior e, portanto, tem um pátio interior de maiores dimensões. Em seu perímetro estão localizadas as salas de aula, oficinas e serviços necessários, animados por um pátio repleto de atividades.
7. CONECTORES
Articulando os quatro anéis aparecem os conectores atuando como zonas de união e interseção entre eles. Estes são espaços de pé direito duplo e cobertos, que permitem a comunicação, o descanso e dispersão de alunos e professores.
6. MEMBRANA
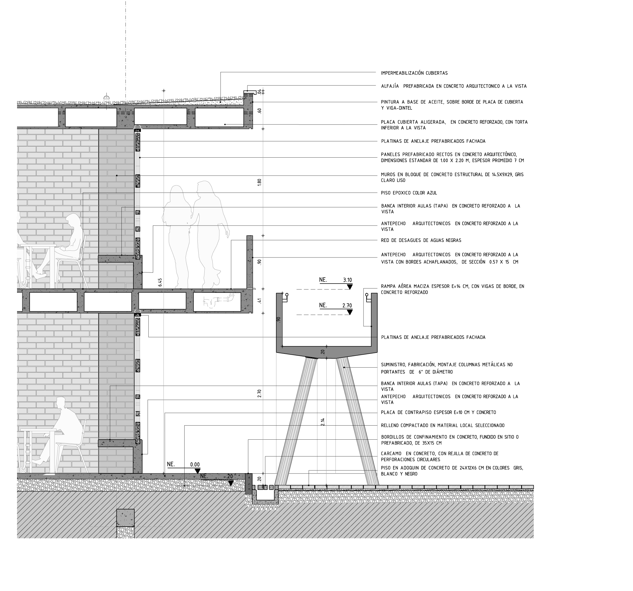
Da mesma forma que ocorre nos diagramas de conjuntos e nas células biológicas, o projeto tem um controle de membrana: iluminação, ambientais e de acesso. Esta membrana é tanto fachada exterior e interior e em alguns dos pátios é espaço intersticial. É composta por elementos pré-fabricados de concreto de vários tons de cinza, com um design específico para o projeto e para a construção desse elemento de forma porosa.
8. RELAÇÃO COM A CIDADE
Do ponto de vista urbanístico, os quatro anéis são posicionados deixando um circuito de pedestres e um perímetro público, e isso permite que estudantes e moradores possam rodear completamente a escola. A posição dos anéis deixa duas áreas abertas e públicas, estratégicas nas zonas de conexão do terreno com a vizinhança. O lado nordeste do lote é liberado para a área de estacionamento, uma área de lazer e uma grande área verde e jardins, como um espaço que pode ser apropriado por seus habitantes. No lado leste do projeto, que está localizado no acesso ao colégio, o espaço público e o espaço intersticial (comum) são a continuação do caminho que permite a conexão com o canal de águas pluviais, criado como o principal espaço público linear da urbanização.
Mais do que uma escola isolada pretende-se desenvolver um projeto que promova novos setores urbanos centrais, com os equipamento existentes na escola, usando a biblioteca, os pátios e o auditório ao ar livre como apoio às atividades do bairro.
O edifício é concebido como um equipamento e espaço emblemático para o bairro, por sua geometria sinuosa e envolvente e sua situação, como um edifício de fácil reconhecimento, que permite agrupar a comunidade.
6. PROCESSO ESTRUTURA E CONSTRUÇÃO
O projeto propõe uma combinação de paredes de blocos estruturais e colunas metálicas retangulares e circulares. Cada anel funciona independentemente, evitando deformações na estrutura. Cada um deles assume as suas próprias tensões e deformações estruturais e podem ser construídos de forma paralela e eficiente.
7. MATERIAIS
Os materiais foram selecionados considerando o uso público e as condições climáticas da cidade: de alta resistência, de fácil manutenção e durabilidade ao longo do tempo. Pisos em pintura epóxi azul, de fácil manutenção e limpeza, definindo áreas pedagógicas. Coberturas em concreto aparente cinza claro com forma de ripa de madeira de 5 cm. Paredes de blocos pré-moldados de várias cores. Placas coloridas de madeira aglomerada tipo MDF e fórmica coloridas para enfatizar e áreas educacionais. Painéis pré-moldados de concreto em vários tons, com design específico para o projeto.
8. CONSTRUÇÃO SUSTENTÁVEL E BIOCLIMÁTICA
Foram propostos sistemas de ventilação passiva, de captação e aproveitamento da água da chuva, climatização passiva, otimização da luz natural e em geral a otimização dos recursos energéticos através do uso de sistemas passivos de controle da temperatura e acúmulo de águas pluviais.
Propõe-se uma estrutura vertical de proteção solar (membrana) nas bordas exteriores do projeto para minimizar o impacto do sol, além de saliências e recuos das salas de aula que permitem também proteção solar. Da mesma forma, os painéis pré-fabricados permitem a passagem de ar através de ventilação transversal.
Os pátios favorecem a criação de microclimas que permitem temperaturas mais baixas, com a produção de correntes de ar pela diferença de temperatura entre o exterior e o interior, fazendo com que a sala se refresque por meio da ventilação cruzada.
Ficha Técnica
Obra: Institução Educativa Flor do Campo
Localização: Vía de la Cordialidad, Sector el Pozón, Urbanización Flor del Campo, Cartagena de Indias Distrito Turístico y Cultural, Bolívar, Colômbia
Concurso: Novembro de 2007
Projeto: Fevereiro de 2008 – Abril de 2008
Construção: Abril de 2009 – Janeiro de 2010
Arquitetos: Giancarlo Mazzanti + Felipe Mesa (Plan B)
Arquitetos Colaboradores: Rocío Lamprea, Jairo Ovalle, María Alejandra Pérez, Fredy Pantoja, Andrés Sarmiento, Juliana Angarita e Marcela de la Hoz
Patrocínio: Ministério da Educação e FONADE
Proprietário: Secretaria de Educação do Distrito de Cartagena de Indias DT y C
Construtor: Consorcio Barrancabermeja
Área: 6.168 m²
Fotografias: Giancarlo Mazzanti
_________________________________________________________________________
Agradecemos aos autores pela disponibilização do projeto para publicação.
–



























