Concorrência – Técnica e Preço – SESC-DF
3º lugar – Oficina de Arquitetos – Rio de Janeiro
Memorial Descritivo
Cultura e lazer pra todos.
Os equipamentos culturais, educacionais, de lazer e esportivos do SESC, participam ativamente do cotidiano de uma localidade, cidade ou mesmo região. Influenciam na formação sócio-cultural de seus habitantes, atuando como promotor do desenvolvimento de potencialidades diversas.
O espaço que tenha na sua essência o valor da convivência, do encontro, da troca, do cotidiano, como diretriz de projeto, não poderia ser concebido de outro modo, que não fosse através da criação de uma praça pública como espaço de convergência de atividades e manifestações diversas.
Portanto, nosso projeto, basicamente é composto por uma praça suspensa, que direciona verticalmente os fluxos diversos, seguindo a lógica do programa do Complexo Cultural, Esportivo e de Lazer do SESC-Distrito Federal, que define claramente três grupos de atividades de naturezas distintas: áreas de ação cultural, áreas de ação de lazer e áreas para desenvolvimento físico desportivo. Esse variado conjunto gera um extenso programa de necessidades institucionais atendido pelo projeto arquitetônico, possibilitando a criação de áreas de convivência que articulam esses diferentes usos, e que podem também assumir uma reversibilidade no sentido em que poderão ser transformadas ocasionalmente em áreas de exposições, intervenções e apresentações diversas. Estes espaços privilegiam a integração visual e física entre os diversos ambientes, entre o complexo e a paisagem, estimulam a liberdade de circulação além de possibilitar acolhimento e sociabilidade entre os freqüentadores.
O projeto garante a clara identificação dos espaços que respondem às exigências funcionais de uso e faz com que o conjunto tenha presença marcante na paisagem, através de uma forte dimensão expressiva, ao se espalhar pelo terreno, construindo uma nova topografia.
Este gesto permitiu organizar o programa, com suas especificidades (alturas, visadas, permeabilidades, ventilação e outros), respeitando os afastamentos laterais de 10m, e altura final da edificação de 9 metros acima da soleira, assim como as demais normativas para construção no terreno proposto.
Desta maneira, a localização do conjunto surge naturalmente de acordo com as possibilidades de visadas, com a interação com o acesso principal (rua interna periférica noroeste), e da implantação dos grandes equipamentos, como teatros, ginásio e piscina coberta.
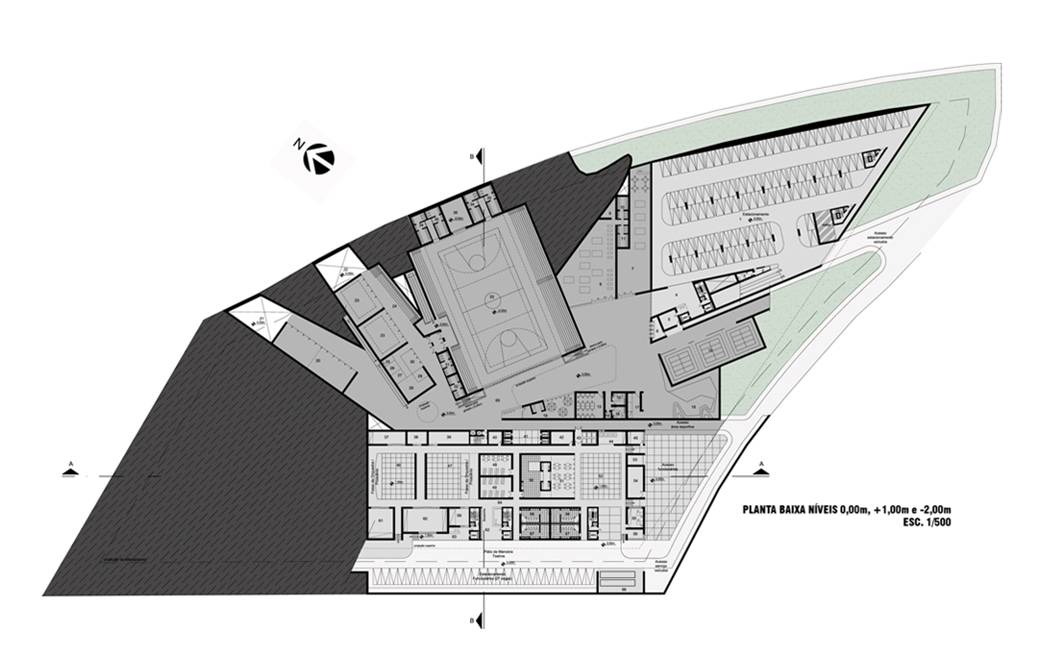
Para organizar o fluxo de serviço e docas, os dois teatros, restaurante e a área de serviço estão voltados para uma rua projetada a sudoeste. Nesta via estão localizados a estação de tratamento, cisternas, e já próximo à via interna periférica noroeste, está o reservatório de água superior. Está área de serviço é acessada pela via interna periférica sul, assim como o edifício garagem. Este possui 5 pavimentos, sendo 2 dois subsolos, térreo (Nível de referencia 0,00, que corresponde ao nível +1.009,00 da topografia) e dois pavimentos superiores.
Conforme solicitação do programa, restaurante, salão social, anfiteatro e parque aquático estão voltados para o lago Paranoá (sul), e elevados a +7,5m da cota 0.00m, já que, os terrenos vizinhos podem receber construções com gabarito de até 7,5m. Desta forma, se garante a clara visibilidade da paisagem, sem que nenhuma outra edificação a obstrua.
O anfiteatro possui uma concha acústica desmontável, permitindo outro tipo de atividade na sua área. Esta área é cercada pelo jardim, que invade os espaços de convívio, de estar ou de passagem do conjunto, querendo com isso participar do seu dia a dia e manter a devida temperatura e condição desejável de umidade nos ambientes. O Anfiteatro está aberto a atividades ao ar livre e públicas. Seu acesso se dá pelo jardim, que conduz o visitante a conhecer o SESC e suas áreas adjacentes, assim como deslumbrar a vista para lago Paranoá.
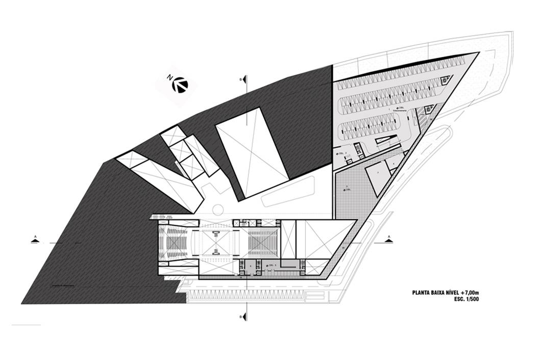
O acesso principal ao SESC é realizado pela rua periférica Noroeste, em uma plataforma elevada +3,00m da cota de soleira (corresponde ao nível +18,00 no projeto). Assim os visitantes do Sesc reconhecem claramente o acesso principal e se deparam com a área de controle de acesso, praça e restaurante com uma grande varanda que se estende sobre parque aquático, reforçando a importância da vista.
A praça de acesso promove a transição entre o espaço público e o privado, entre as áreas sociais, administrativas, cultural, esportiva e de serviço. Essa manipulação espacial busca provocar no usuário o desejo de entrar e a conhecer as atividades e os serviços oferecidos, desvendar seus espaços, e sentir todas as atividades oferecidas. Assim, a arquitetura que propomos, busca ser não só atrativa, mas também acolhedora e possibilitadora de trocas sociais, de descobertas por novos estímulos e experiências, sem interferir na autonomia nas escolhas do público.
Implantação
A implantação do conjunto, conforme mencionado anteriormente, foi direcionada por alguns condicionantes. O acesso principal acontece pela rua interna projetada Noroeste onde o bloco social e administrativo flutua como uma cobertura ao subsolo aberto (área esportiva – nível 0,00 no projeto) e mezanino do mesmo (área social – nível +4,00m no projeto). O conjunto estabelece uma ligação visual com o Rio Paranoá e com a Ponte JK, propiciando ume espaço arborizado, transparente e permeável às perspectivas externas, integrando os acontecimentos do edifício e incorporando a paisagem circundante a seus ambientes internos.
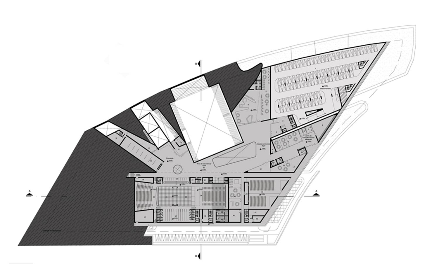
Para evitar a criação de duas caixas cênicas, propomos que os Teatros se comuniquem através de uma única, o que proporciona uma flexibilidade ao equipamento, uma vez que atende a outras configurações além da tradicional italiana, como conformação em arena, teatro elizabetano e outros. A grande coxia também pode se transformar em platéia. Para permitir melhor uso do espaço do palco, acrescentamos ao trecho fixo, plataformas articuladas móveis. O fosso da orquestra está no teatro maior, porém poderá ser utilizado, dependendo da configuração.
Os acessos aos teatros acontecem pelo andar cultural (mezanino do subsolo aberto – nível +4,00m no projeto), que funciona como foyer das diversas atividades deste andar. A mesma vocação para foyer, acontece na praça do subsolo aberto (nível +1,00m do projeto), que conecta conecta todas as atividades. A quadra do ginásio, por sua vez, está no nível -2,00m do projeto, e foi cuidadosamente projetada para não comprometer o conjunto acusticamente.
Com a inserção da piscina entre pavimentos e com seu acesso voltado para o parque aquático, a situação térmica ideal foi alcançada utilizando anteparos para barrar a luz e o calor em excesso. A piscina não foi a única a receber este cuidado, todo o edifício foi pensado segundo esta orientação.
A utilização de ar condicionado só e desejável para algumas áreas. A gráfica e os materiais utilizados, assim como, a sua solução espacial, segue esta orientação cuidadosa com o conforto térmico.
Portanto, o projeto para o Complexo Cultural, esportivo e de Lazer do SESC-Distrito Federal foi conceituado para atender a todas as normas e legislações locais, tanto urbanísticas quanto técnicas, se baseando em conceitos de eficiência energética, otimizando os recursos destinados a sua implementação, e possibilitando total acessibilidade a portadores de necessidades especiais. Deverá também haver gestão de resíduos na obra, que propiciará a redução do desperdício de materiais e energia durante a construção.
Estrutura e equipamentos
Os blocos principais que constituem os níveis mais baixos são constituídos de estrutura de concreto armado convencional com utilização de lajes nervuradas para possibilitar a definição de grandes vãos. O edifício suspenso, que abriga a área social e administrativa do complexo será de estrutura mista, com vigas de aço, laje protendida, fechamentos periféricos em alvenaria convencional e internos em gesso acartonado. A modulação estrutural básica utilizada foi de 10 x 7.5m no subsolo, otimizando a distribuição das vagas. No caso de outras áreas específicas, serão necessários estudos mais profundos posteriores.
A cobertura deste edifício é composta por um sistema espacial com telha de alumínio galvanizado com poliuretano no seu interior, coberto por uma manta tipo “rollon”, que possui propriedades isolantes. As lajes de cobertura ou de piso de demais áreas serão de concreto (impermeabilizadas com manta asfáltica), assim como as áreas de subsolo, de maneira a evitar infiltrações e umidade.
O posicionamento das circulações verticais, abrigando elevadores, escadas, rampas, sanitários, “shafts”, dutos e sala de máquinas, é planejado racionalmente, em forma de prumadas, a fim de reduzir ao mínimo a circulação necessária e maximizar os espaços e distribuição de instalações.
A solução destes sistemas de circulação cumpre as demandas dos órgãos regulamentadores, além de promover segurança, acesso rápido e fácil para pedestres e suprimentos. O número e o tamanho dos elevadores, assim como a sua organização, deverão ser especificados para minimizar problemas de tráfego nas horas de pico de circulação, seguindo corretamente o estabelecido na norma (NBR 5665).
Os materiais de revestimento foram especificados levando em consideração a segurança (materiais incombustíveis com proteção retardante de calor e chamas) e a elevada durabilidade, que exijam mínima manutenção. Além disso, os materiais devem possuir uma escala mínima de produção que permita sua comercialização a largos contingentes de consumidores a curto e médio prazo.
Os pisos deverão ser de alta resistência industrial (Tipo Korudur), de borracha e placas de cimento pré-moldado (Tipo Solarium). As áreas de sanitários, cozinhas e docas, devem ser de construção durável e com materiais impermeáveis de alta qualidade, capazes de suportar cargas elevadas. Os teatros deverão receber revestimentos acústicos, como piso em carpete e revestimentos das paredes e tetos em placas acústicas.
Os fechamentos dos edifícios serão, externamente em alvenaria convencional espessa de uma vez para retardar a passagem do calor. Internamente, nas áreas administrativas, os fechamentos poderão ser em paredes de gesso acartonado composto por estrutura de alumínio, isolamento acústico em lã de rocha e painéis resistentes a fogo (RF). Além disso, os ambientes devem ser pintados internamente com tinta acrílica branca e deverão receber rebaixos em gesso acartonado.
Grande parte das janelas serão de alumínio anodizado com vedação reforçada. Além da tecnologia aplicada as esquadrias e vidros, serão usados elementos de sombreamento (brises) que irão auxiliar o desempenho térmico, reduzindo as cargas de ar condicionado e baixando os custos de energia. Estes elementos atenuam da mesma forma a propagação e recepção de ruídos externos, sendo, portanto absorventes acústicos.
Os blocos que compõem o Complexo, pelas suas características de funcionamento, possuirão sistemas independentes de climatização e exaustão. Serão abastecidos por Central de Produção de Água Gelada, com funcionamento independente, e serão dotadas de unidades resfriadoras de água acionadas por energia elétrica ou com o uso de gás natural, dependendo dos estudos custo-benefício-espaço físico a serem desenvolvidos quando da elaboração do projeto executivo.
O sistema a ser adotado será do tipo Refrigeração por Expansão Indireta com água gelada refrigerada por chillers a ar. O sistema de distribuição do ar em alguns ambientes será através de unidades fan coil estrategicamente localizadas, corretamente dimensionados em função dos cálculos de carga térmica a serem desenvolvidos, e terão arcabouço em dupla chapa possibilitando uma fácil limpeza e descontaminação internas. A climatização com fan-coils possibilitará o controle de temperatura e umidade individual de determinados ambientes.
Assim, o projeto de Ar Condicionado deverá ser desenvolvido seguindo os princípios de racionalização do uso da energia elétrica (o sistema será dotado de todos os mecanismos de recuperação de energia disponíveis no mercado, tanto na parte da produção de frio quanto na distribuição de ar, permitindo o seu funcionamento pleno sem desperdícios e com baixo consumo de energia) e qualidade de ar nos interiores
Um sistema independente de controle de energia e temperatura, automático, receberá sinais dos sistemas de detecção de fumaça, sprinklers, e de incêndio. Todas as instalações elétricas serão projetadas de forma a minimizar manutenção e defeitos.
De maneira a facilitar a manutenção, as instalações poderão ser aparentes e dotadas de dispositivo para interromper o fogo, aumentando a segurança dos ambientes. A alimentação elétrica nas diversas áreas deverão ser flexíveis possibilitando alterações de layout ocasionalmente a serem implementados, agregando inclusive, projeto de sonorização.
Será previsto um sistema com malha de terra para aterramento dos sistemas elétricos. Serão aterrados todos os neutros do sistema, carcaças metálicas de todos os motores, quadros de distribuição de energia, circuitos elétricos, além de suportes de sistemas elétricos, luminárias e onde mais se fizer necessário. O aterramento dos equipamentos de CPD, PABX e sistemas especiais será feito através de cabos expressos e isolados, interligados à malha de terra.
Será prevista a instalação de pára-raios do tipo Franklin para proteção do prédio contra descargas atmosféricas, em conformidade com as normas ABNT/IEEE.
O sistema de iluminação deverá ser controlado e setorizado. Desta maneira, podem ser utilizados também sensores de presença nos ambientes, que também diminuirão consideravelmente o consumo de energia.
Poderá ainda ser usado o potencial da luz do sol para sistemas de energia alternativa, como o sistema fotovoltaico para geração de energia de alimentação das luzes de emergência.
Além de ser dotado com um projeto de fuga – escadas, rotas de fuga, etc. – concebido segundo todas as normas do Corpo de Bombeiros, o conjunto deverá ter instalado sistemas de Sprinklers, sistema de detecção e alarmes contra-incêndios e Iluminação de emergência.
O conjunto será dotado de uma Central de Gerenciamento Predial, digital e automatizada para controle global das seguintes atividades:
• Aquisição e exibição do estado de todos os equipamentos controlados
• Processamento de sinais de eventos e alarmes, datados e registrados sequencialmente
• Detecção, alarme e combate a incêndio
• Vigilância por CFTV
• Acionamento automático de dispositivos de combate a incêndio e alarmes locais
• Comando automático de sistema de iluminação e outros equipamentos por programação horária
• Controle de acesso de pessoas e locais restritos em horários pré-determinados
• Supervisão e controle à distância dos sistemas de acumulação de água potável e de descarga de águas servidas e esgotos
• Comando e controle automático de centrais de produção de frio
• Controle de condições de conforto em ambientes climatizados
• Supervisão da operação dos elevadores
• Acumulação de tempos de operação de manutenção preventiva
• Supervisão da operação da central de energia elétrica de emergência
• Aquisição e processamento de sinais de medição de consumo de energia elétrica
• Controle de demanda elétrica do prédio
• Programação horária de ligamento e desligamento de equipamentos
• Supervisão e controle do sistema elétrico;
• Supervisão de segurança
• Sistema no-break
O número de peças sanitárias (lavatórios, bacias e mictórios) segue corretamente o Código de Edificações, assim como a utilização das mesmas destinadas a portadores de necessidades especiais.
A proposta prevê o reuso da água da chuva para usos secundários (limpeza e descargas), além de equipamentos redutores de consumo de água, como torneiras, chuveiros e vasos sanitários. Isto possibilita economia em torno de 90%.
Os níveis de ruído causados pelos mais diversos tipos de atividade, equipamento e instalação técnica, estarão dentro dos limites permitidos em cada área de trabalho específica. Todos os equipamentos e instalações mecânicas serão dotados de dispositivos que atuem com ruídos e vibrações. Serão instalados atenuadores de ruídos nos dutos de retorno e insuflamento de ar condicionado.
Paisagismo
_____________________________________________________________________________________________
___________________________________________________________________________________________________
Ficha Técnica
Projeto de Arquitetura: Oficina de Arquitetos
Autores: Arq. Gustavo Martins e Arq. Ana Paula Polizzo
Equipe de Arquitetura: Arq. Raíssa Rocha
Estagiário: Frederico Martinho
Consultores e Projetistas complementares
Proj. do Teatro: Maurício Campbell
Projeto Estrutural: Bruno Contarini
Instalações Prediais: Gilvan Ferreira
Ar condicionado: Paulo Kayano
Paisagismo: Fernando Acylino e Violeta Pires
___________________________________________________________________________________________________
Agradecemos aos autores pela disponibilização do projeto para publicação.






























Parabéns…
Excelente proposta. Foi a minha favorita, pena que não ganhou. É esse tipo de arquitetura que sentimos falta nos dias de hoje!
bom trabalho, linda estrutura, parabens! arquitetura boa de se ver.
Bela Proposta. Espaços que qualificam e resolvem os problemas com clareza, sentido e consistência.
Parabéns aos autores!