Concurso para a Expansão do Museu do Meio Ambiente – RJ
3º lugar – João Pedro Backheuser e Alfredo Britto – Rio de Janeiro
______________________________________________________________________
Memorial Descritivo
Introdução
O Jardim Botânico do Rio de Janeiro é um valioso ícone do imaginário afetivo da população carioca.
Criado em 13 de junho de 1808 por decreto do príncipe regente Dom João VI para o desempenho fundamental de aclimatação de plantas, transformou-se no Real Jardim Botânico a partir de 1824 graças a atuação de frei Leandro do Sacramento, primeiro diretor com formação em Botânica.
Ao final do século XIX, foi fortalecida a pesquisa científica e criados o Herbário, a Biblioteca e o Museu, fortes instrumento de educação e divulgação científica e conscientização dos valores da Natureza. Ao longo do tempo, esse museu sofreu diversas transformações até sua formatação e denominação atuais.
O Concurso para expansão do Museu do Meio Ambiente se insere no fortalecimento desta trajetória, na perspectiva e luta da humanidade pela viabilidade de um universo sustentável e coloca um delicado desafio – a inserção de objetos arquitetônicos que, com sua marcada individualidade contemporânea, estabeleçam um novo conjunto harmônico e atraente para um crescente público visitante.
Conceitos Básicos
Protagonismo compartilhado – colocar no mesmo nível de valorização a edificação histórica e a nova de característica explicitamente contemporânea;
Flexibilidade – tornar o conjunto plenamente capaz de adequação a modificações programáticas e à diferentes concepções e conceitos de museografia. A flexibilidade é um preceito fundamental para a concepção de um novo museu;
Integração e Conectividade – obter com a inserção da nova edificação somada a renovação do edifício existente da fitopatologia e a proposta paisagística, a indispensável integração e conectividade de todo o conjunto, que vai desde a rua Jardim Botânico até a área marcada pela presença do Centro de Visitantes e o Espaço Tom Jobim;
Sustentabilidade e Eficiência – potencializar e ampliar ao máximo os conceitos de sustentabilidade e eficiência energética e econômica, presentes na Agenda 21 brasileira (Ministério de Meio Ambiente);
Acessibilidade universal – tornar os espaços do novo MuMA adequados e acessíveis a todos os portadores de necessidades especiais.
Espacialidade e Volumetria
A presença de novo volume contíguo a edificação existente e considerada, até então, principal, somada a decisão de não se utilizar o acesso pelo portão original e frontal a esta edificação, favoreceu o lançamento do acesso principal através de volume intermediário capaz de bem distribuir os acessos secundários às diferentes funções do programa, ao mesmo tempo em que articula a presença dos dois volumes (o existente e o novo) de maneira harmônica.
Ao caráter francamente tectônico do museu atual, contrapõe-se uma materialidade mais diáfana, gerada por uma dupla fachada, feita de vidro e placas de aço cortén perfurado. O sistema permite uma transparência por assim dizer controlada, que varia conforme a insolação e as condições climáticas. A fachada é de resto um ícone do compromisso de toda a edificação com a sustentabilidade e a consciência ambiental.
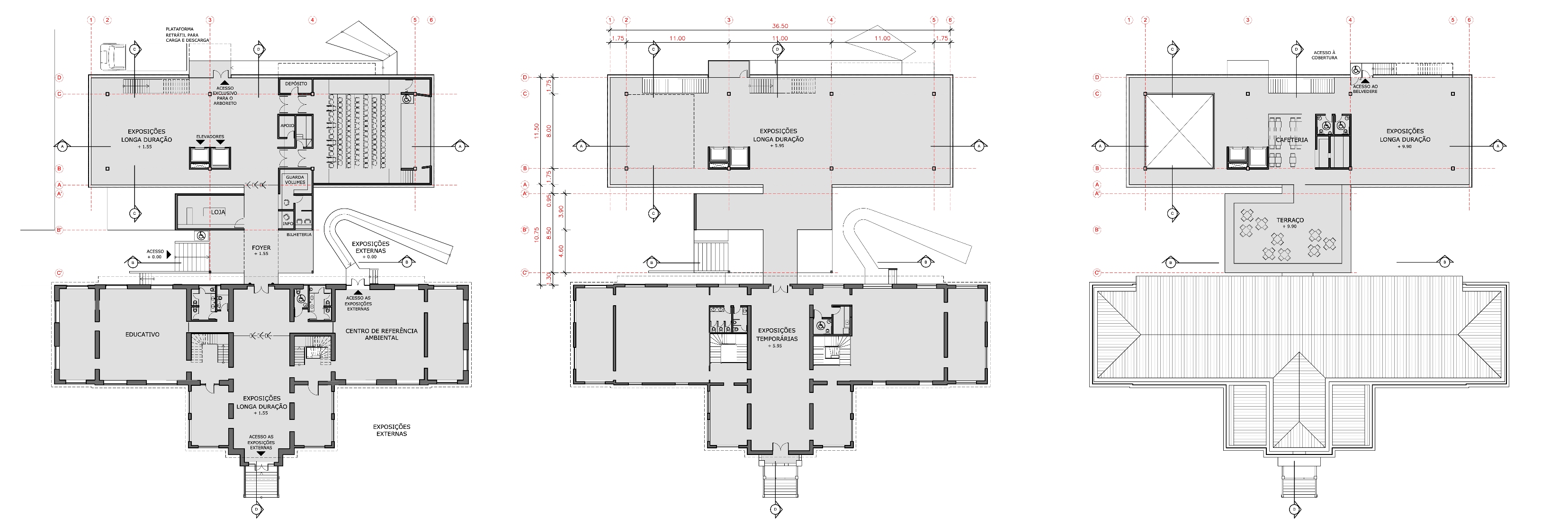
As áreas destinadas a exposições estão distribuídas pelos três (03) pavimentos da nova edificação possibilitando diversas alternativas de roteiros e métodos expositivos;
A disposição dos elementos de circulação vertical oferece condições favoráveis a uma visitação que principia pelo acesso por elevador ao último pavimento e o desenvolvimento pelos demais pavimentos ao descer pelas escadas;
A laje de piso do segundo pavimento terá parte de sua superfície vazada oferecendo interação visual com o primeiro e uma rica visão de possível exposição de maquetes e peças de grande porte aí colocadas;
O pavimento de cobertura será uma área de contemplação, um belvedere a 13,90 m sobre o Arboreto e elementos circundantes. A parte mais a SE é ocupada por um conjunto de sheds, integrante do sistema de ventilação e iluminação da edificação;
A área externa frontal ao prédio existente foi preservada como jardim privativo do MuMa, adequado a exposições ao ar livre, proporcionando uma interação com a via pública;
As atividades de carga e descarga utilizarão plataforma localizada na superfície NE da nova edificação, restrita a esse uso específico em horários predeterminados;
O projeto sugere, ainda, a possibilidade do usuário ao adquirir ingresso para o MuMA poder ter acesso direto ao Arboreto; que se dá através de rampa na fachada NO do novo edifício ou pelo acesso existente no jardim do museu. Esse acesso marca o vínculo essencial existente entre o que se expõe nos espaços do museu e o acervo vegetal do Arboreto, valorizando e qualificando o aspecto didático da visitação do Arboreto.
A Administração do conjunto estará instalada no local onde se encontra atualmente, a edificação do setor de Fitopatologia do JBRJ; a nova solução aproveita ao máximo (cerca de 85%) os elementos construtivos existentes organizando-os de forma a proporcionar ambientes mais atraentes e confortáveis aos que ali permanecerão trabalhando ou aos meros visitantes; o acesso se dará através de pequeno pátio interno onde se destaca belo exemplar arbóreo preservado e estará localizado no caminho de ligação com o conjunto do museu; esse aproveitamento dos elementos construtivos será fator considerável no combate ao desperdício e na economia geral do investimento;
Sustentabilidade
O projeto contempla as seis dimensões que regem o sistema LEED de classificação e de certificação de edificações eco-eficientes: Sítios sustentáveis; Eficiência hídrica; Energia e Atmosfera; Materiais e recursos; Qualidade ambiental interna e Inovação além de atender os requisitos técnicos de eficiência energética estabelecidos pelo PROCEL, incluindo: o desempenho térmico da envoltória, a eficiência e potência instalada do sistema de iluminação e a eficiência do sistema de condicionamento de ar.
Em termos de sustentabilidade ecológica e ambiental foram enfatizadas as seguintes questões: Eficiência Energética, tanto na execução quanto na operação do edifício com o uso de sistemas passivos e fontes alternativas de energia; Diminuição de Rejeitos durante a construção e operação do edifício; Gestão de RCD com a utilização de materiais que possuam na sua composição resíduos de construção e demolição (RCD); utilização de Materiais Construtivos com Conteúdo Reciclado ou potencial de reciclagem; Preservação dos Recursos Hídricos e o Reaproveitamento da Água.
Em cada pavimento, objetivando grande efeito educativo, haverá painel de fácil visibilidade e leitura sobre os procedimentos em andamento que contribuem para a sustentabilidade do conjunto.
O sistema de coleta das águas pluviais adota dois reservatórios dispostos no subsolo – o de retardo e o de reuso.
Paisagismo
O projeto paisagístico valoriza as características históricas do jardim frontal a residência Pacheco Leão e satisfaz a um só tempo necessidades de caráter ecológico, de conforto climático, estéticas e funcionais do novo conjunto, buscando nomeadamente:
– contribuir para o conforto térmico e ambiental dos ambientes;
– proporcionar sombreamento, beleza e aromas nos jardins que envolvem os edifícios;
– gerar sombras nos percursos e áreas de estacionamento e minimizar os efeitos nocivos, tanto visuais, quanto atmosféricos, das descargas dos veículos automotores;
– proporcionar uma elevada taxa de permeabilidade do terreno;
– utilizar elementos vegetais nativos da região, adaptados ao regime de chuvas e demais condições climáticas locais.
Toda a pavimentação de asfalto existente será retirada. Caminhos e vias, novos ou existentes, receberão nova pavimentação em saibro compactado, blocos intertravados de concreto e placas de concreto com juntas de cinco (05) cm em saibro, todas propiciando alto coeficiente de permeabilidade.
Sistema estrutural
O solução estrutural visa a máxima racionalização e a melhor integração de todos os procedimentos construtivos. A definição do sistema em aço foi regida pelos princípios da padronização e da recorrência, com componentes e vãos que se repetem por toda a extensão da edificação. A estrutura em aço, além de permitir um canteiro seco, eficiência de montagem, e propriedades de resistência e durabilidade, oferece maior velocidade da obra, a minimização da geração de rejeitos de obra (sobretudo fôrmas) e um material 100% reciclável. A solução estrutural permite que o térreo e o primeiro pavimento da nova edificação tenham seus pisos nivelados aos pavimentos da edificação existente.
Sistema de fachadas
As superfícies externas da nova edificação serão recobertas por um sistema de placas perfuradas de aço cortén. Essa pele estará afastada quarenta (40) cm da superfície de vedação do volume, proporcionando visibilidade de dentro para fora e proteção da insolação nestas superfícies, especialmente as de orientação NE e NO, contribuindo para considerável aumento do controle e da eficiência energética.
O prédio da Administração e seu pátio são delimitados pela pele de placas de aço cortén, sobressaindo a cobertura como elemento fundamental da composição volumétrica e proporcionando uma clara leitura de integração e harmonização do conjunto
Infra-estrutura
Os projetos dos diferentes sistemas infraestruturais visam a facilidade de manutenção, a redução de custos operacionais, dos níveis de ruído e de vibração e, muito especialmente, uma máxima eficiência energética.
No que concerne à eficiência energética e à sustentabilidade, os projetos de instalações fundamentam-se nos seguintes preceitos fundamentais: Coleta de águas pluviais para utilização nos vasos sanitários e irrigação; Lâmpadas de alta eficiência incorporadas às luminárias de alto rendimento; Circuitos de iluminação sob controle de foto células e Automação do sistema de iluminação comandado por sensor de presença; Louças e Metais de baixo consumo e funcionamento automático; Sistema de energia elétrica composto por uma máxima separação de circuitos e controle de demanda; Sistema de Ar-Condicionado setorizado possibilitando seu uso de maneira racional e eficiente; Medição do consumo e rendimento de toda os sistemas controlados a partir de uma central localizada no subsolo.
Luminotécnica
Para o museu foi criado um sistema linear de iluminação difusa com lâmpadas de baixo consumo integrado a uma linha de trilhos eletrificados, onde serão instalados projetores de acordo com a necessidade de cada layout. Esse sistema permite a máxima flexibilidade do espaço com grande eficiência.
Acústica
A proposta visa proporcionar conforto ambiental aos funcionários e visitantes seguindo duas premissas básicas: o Isolamento Acústico que visa atenuar a transmissão do ruído aéreo direto ou via estrutura para o interior de todos os ambientes, bem como entre as diversas áreas adjacentes e o Condicionamento Acústico para atenuar as possíveis reverberações internas produzidas nos diversos ambientes, de modo a proporcionar conforto ambiental aos usuários e visitantes.
____________________________________________________________________________________________________
Pranchas:
________________________________________________________________________________________________________
Ficha Técnica:
Equipe:
Autores
João Pedro Backheuser
Alfredo Britto
Colaboradores
Hervé Logéat
Cinthia Patrício Santos da Silva
Luisa Beatriz Barbosa dos Santos
Leonardo Lattavo
Pedro Pedalino – Estagiário
Alex Santos – Estagiário
________________________________________________________________________________________________________
Agradecemos aos autores pela disponibilização do projeto para publicação.













Gostaria de obter emails para contatos dos arquitetos Leonardo Lattavo e João Pedro Backheuser.
Obrigada
sheila