Concurso Nacional – Museu do Meio Ambiente – RJ
Menção Honrosa
Autor: José Augusto Fernandes Aly
______________________________________________________________________
MEMORIAL
O projeto do museu do meio ambiente será mais um marco de valor cultural na cidade do rio de janeiro. Sendo um sítio privilegiado no jardim botânico, deve contemplar valores que o tornem culturalmente relevante, especialmente quanto ao fato de expressar uma arquitetura que atenda às demandas atuais, expressando uma preocupação justa com o meio ambiente, numa época em que temos visto um mundo em transformação no sentido da construção de uma cultura em favor da preservação do planeta face às mudanças climáticas observadas.
1. Relação com preexistencias e partido
Trata-se da implantação de dois edifícios num parque com edifícios com valor histórico consensual.
O fato dos edfícios existentes serem afastados em torno de 50 metros conduziu a algumas diretrizes:
1.1 Conexão: uma solução que pudesse conectar todos os edifícios existentes e novos e o parque por meio de uma grande “estrutura-promenade” – um deck de madeira certificada em estrutura metálica apoiada em paredes de pedras – afim de constiuir uma unidade e um sentido de exposição continua, dentro e fora dos conjuntos edificados.
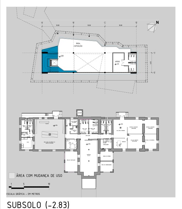
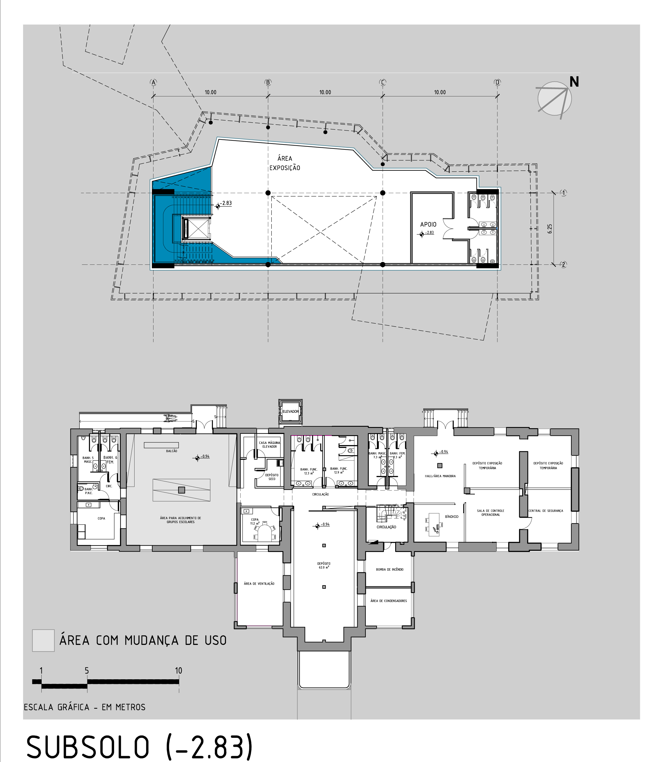
1.2 Fluxos: o estudo dos fluxos e percursos foi essencial na construção do raciocínio do projeto. Assim, aquele deck conector organiza a chegada dos onibus de excursões para crianças e idosos bem como do público em geral, conduzindo-os para a área entre o novo edifício e o edifício histórico às biilheterias que se encontram neste último. Daí os visitantes, após percorrê-lo em sua integridade, adentram através de uma ligação no nível 5,92 metros (nível do primeiro pavimento do edifício histórico), o novo edifício. Entram neste na cota 5,92, portanto e fazem um percurso de visitação nesse pavimento e descem ao térreo (cota 1,56m). Fazem o mesmo percurso e descem ao subsolo e, após visitar este pavimento, retornam ao térreo. Daí seguem um percurso rumo ao edifício do auditório, administração e grande bar / café terminando assim a visita junto a residencia pacheco leão, sem adentrá-la. Outros fluxos podem ser vistos nos esquema.
1.3 Novos lugares: cada edifício é um novo evento que explora ao máximo o significado do meio ambiente onde se insere. O edifício das exposições de longa duração foi concebido para ser uma intervenção suave junto ao edifício histórico, tendo como principal desígnio valorizá-lo através das estratégicas aberturas a ele voltadas e certa simpliciadade no trato da forma. O lado oposto absorve adaptações geométricas mais instáveis adaptando-se à natureza – e limites – como um organismo vivo que evolui sofrendo mutações.
Foi concebido para ser transparente em toda a sua volta, gerando linhas de circulação periféricas de modo que todo o percurso interno possa ser integrado com o belíssimo acervo natural do arboreto e das áreas do jardim botânico, explorando as maravilhosas visuais. Um vazio central organiza os espaços em sua volta e, ao mesmo tempo em que contribui para uma chaminé de aeração alternativa ao ar condicionado, contribui para um nível de iluminação natural desejavel no ambiente.
O edifício da adminstração, café e auditório (sala múltiplo uso), como ponta final do percurso, foi concebido para ser um marco importante, na medida em que irá receber pessoas no café e para a sala multi uso. Esta sala como um monolito sobre pilotis direciona vistas noroeste – sudeste para o exterior enfatizando a área junto ao centro de visitantes e a residencia pacheco leaõ.
2. Mundo sustentável
2.1 Consumo de energia
2.1.1. O edifício utiliza todo o potencial de baixas emissões e baixo consumo de energia. Sendo assim, a ampla utilização de aproximadamente 25 placas fotovoltaicas medindo aproximadamente 1,5 x 1,5 metros irá garantir um uso racional dos recursos energéticos naturais.
2.2 Quanto ao consumo de materiais, estamos propondo o uso de concreto armado moldado in loco como estrutura básica dos edifícios, porém com agregados que podem ser originados do reaproveitamento das demolições locais. Além disso, o deck de conexão será feito em madeira tanalizada e certificada que absorve co2 reduzindo a emissão de gas de efeito estufa na atmosfera. Este deck será estruturado com apoios em pedra (material altamente sustentável) e vigas em aço, que, apesar de consumir energia na fabricação é totalmente reciclável.
Brises de madeira tanalizada e de reflorestamento reafirmam o caráter sustentável, pois como dito anteriormente, conservam co2.
O vidro cuja queima é feita por indução, contribui para a diminuição de iluminação artificial.
2.3 Gestão da água
Serão adotados sistemas de reaproveitamento de águas servidas e águas pluviais conforme o que há de mais atual neste sentido. Assim serão instaladas caixas de água fria, águas servidas e águas pluvias que serão alimentadas pelo sistema público, bombas ligadas às torneiras e bombas ligadas a recipientes de águas pluviais respectivamente. Estas águas serão usadas para atividades diversas, restringido consumo humano e animal.
2.4 Qualidade ambiental interior
Ventilação – um sistema de captação do subsolo dos edifícios passando para os pavimentos superiores, através de aberturas naquele piso e na cobertura, permitem uma tipo de chaminé de ventilação. Estas aberturas são reguláveis, podendo-se utilizar ar condicionaddo de forma alternativa. Brises protegem as fachadas equilibrando a absorção de energia térmica com a luminosidade desejável.
Os materiais, apesar de proconizarem uma arquitetura ambientalmente correta, apontam para uma linguagem contemporânea que aborve valor cultural técnico e estético.
_______________________________________________________________________________________
Exposição:
_______________________________________________________________________________________
Auditório e Administração:
_______________________________________________________________________________________
Pranchas:
_______________________________________________________________________________________
Ficha Técnica
Autor: José Augusto Fernandes Aly
Co-Autora: Fabricia Zulin
Colaboradores:
Carlos Eduardo Viani Caser
Gabriel Kieling
Renata de Castro Lotto
Consultor:
Roberta Kronka
_______________________________________________________________________________________
Agradecemos aos autores pela disponibilização do projeto para publicação.




























Projeto com personalidade. Conceitos de sustentabilidade e integração com o ambiente muito bons, com destaques para a circulação de ar e a preocupação com a acessibilidade. Parabéns à equipe.