Como parte da seção ‘obras construídas‘, publicamos nesta edição a sede da Fundação Habitacional do Exército – FHE, em Brasília, resultado de concurso promovido e organizado pela instituição em 2005. O projeto é de autoria dos arquitetos Danilo Macedo, Elcio Gomes, Fabiano Sobreira, Newton Godoy, Filipe Monte Serrat e Daniel Lacerda.
Memorial Descritivo
Em concurso realizado em 2005, a FHE – Fundação Habitacional do Exército – escolheu esta proposta para a realização de sua sede, com aproximadamente 30 mil metros quadrados de área construída. De modo coerente com os objetivos da instituição,o seu edifício-sede manifesta com clareza os princípios de robustez, facilidade de acesso e transparência. A implantação em poucos volumes puros estabelece uma relação de complementaridade com a paisagem adjacente e o Oratório do Soldado – projeto de Milton Ramos adjacente –, ampliando a área de influência do conjunto.
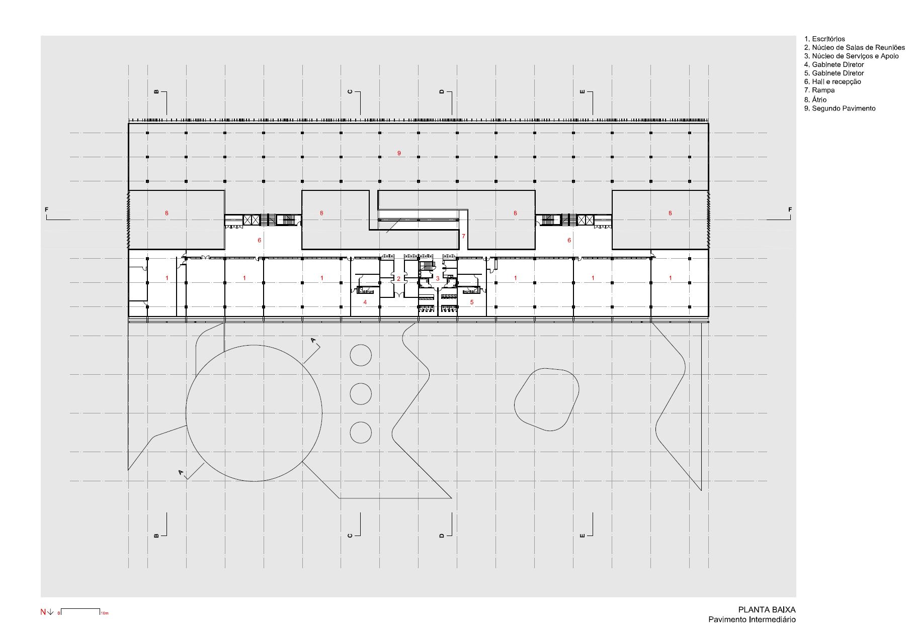
O edifício de escritórios é composto por dois blocos desnivelados entre si e separados por um átrio central. A iluminação difusa e ventilação natural climatizada deste último ambientam com qualidade e economia energética os espaços de trabalho.
O paisagismo complementa o conjunto em relação mimética com o cerrado adjacente e em desenho referente à praça Duque de Caxias – de Burle-Marx – próxima.
A tecnologia construtiva alia a tradição e simplicidade da estrutura em concreto armado à rapidez de montagem e qualidade de acabamento industrializada dos componentes de cobertura, vedação, forro e piso.
Implantação
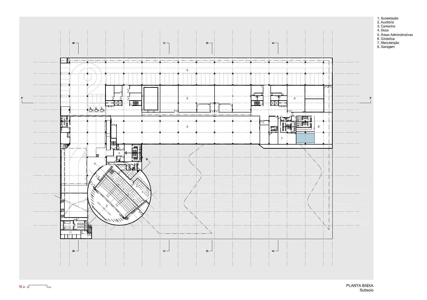
Trata-se de um lote de 100mX150m no setor militar urbano de Brasília, nas proximidades do eixo monumental e adjacente ao Oratório do Soldado – obra de Milton Ramos. Procurou-se integrar o Oratório, o estacionamento frontal e a sede da FHE em um só conjunto. Por isso, encostou-se o edifício na porção sul do terreno e o auditório circular (refletindo a forma do Oratório) na porção leste. Assim o conjunto abrangeria uma área maior, criando-se uma praça de entrada. A marquise em formas livres foi uma consequencia natural dessa decisão de implantação, permitindo o acesso independente ao auditório e o desembarque coberto pela frente do terreno, sem a necessidade de vias internas. Como não há lotes adjacentes, a delimitação do terreno foi sinalizada com o espelho d’água a oeste.
Sistema Construtivo
Foi utilizado o concreto moldado in loco em lajes nervuradas, com fôrmas pré-fabricadas de fibra de vidro e vigas-faixas niveladas com as nervuras das lajes. A solução foi adotada por ser aquela que permite maior vão estrutural com relativa economia. Assim, os vãos de 10mX6,25m (com 2,5m de balanço longitudinal e 5m de balanço nas extremidades) puderam ser vencidos com 35cm de espessura. O piso elevado em 20cm e o forro modular adotado nos escritórios foram exigência do edital. A partir daí, foi definido o fechamento das empenas leste e oeste em concreto aparente, bem como a panos de vidro nas fachadas norte e sul, complementados por brise-soleil verticais nesta última e por uma placa solta na fachada norte. Ambos os elementos de proteção solar foram feitos de estrutura de aço – perfis dobrados compostos – revestida com alumínio composto (Alucobond cor “Copper-Penny”). Todo o edifício foi modulado em 1,25m – estrutura, divisórias, esquadrias. revestimentos e forro.
Sustentabilidade ambiental
Especialmente no que diz respeito ao conforto ambiental e à economia de energia. Com o átrio interno e as placas de proteção solar externas, acreditamos que será possível realizar em grande parte do ano a ventilação passiva nos pavimentos. Isso será possível também graças ao sistema de condicionamento de ar tipo VRF (Fluxo de refrigerante variável), com compressores que variam a quantidade de gás refrigerado de acordo com a demanda. Foi recomendada a exigência de certificação ambiental para todas as madeiras adotadas. Evidentemente, sustentabilidade passa pelo uso de tecnologias locais, pelo uso de fôrmas reaproveitáveis, pela própria racionalidade e economia da solução construtiva adotada, premissas que também fundamentaram o projeto. Sobre o conforto acústico, houve especial atenção para o tratamento apropriado e específico para cada tipo de ambiente do programa e suas particularidades de uso, o que resultou em soluções e materiais específicos para cada caso: as áreas de escritório e reuniões; o átrio central (espaço de convivência e circulação); e em especial o auditório de 700 lugares, que foi objeto de consultoria e projeto acústico específico.
Acessibilidade
A acessibilidade foi uma das premissas básicas do projeto, em todos os aspectos. No que se refere ao acesso a pessoas com dificuldade de locomoção, o projeto atende a todas as exigências normativas. No sentido amplo da acessibilidade, o projeto está fundamentado na facilidade de circulação entre ambientes e pavimentos. Nesse aspecto, um dos elementos que se destacam na solução e que contribui para a acessibilidade do projeto é a rampa central que conecta os pavimentos desnivelados entre si. Essa distribuição dos pavimentos em meios níveis facilita a circulação no edifício.
Economia na obra (economia prevista por soluções arquitetônicas)
A economia da solução apresentada está relacionada a dois aspectos, que se complementam: (1) racionalidade dos sistemas construtivos e a modulação dos componentes (economia na obra) e (2) estratégias de minimização de recursos associadas às soluções passivas de iluminação e conforto térmico e à especificação de materiais e sistemas que demandam o mínimo de manutenção (economia no uso).
____________________________________________________________________________________________
Ficha Técnica
Autores: Danilo Macedo, Elcio Gomes, Fabiano Sobreira, Newton Godoy, Filipe Monte Serrat, Daniel Lacerda
Colaboradores: Joana França, Carla Rabelo, Simone Fonseca, Hélvio Franco, Ana Valéria de Resende Silva, Igor Campos, Ailton Cabral
Fiscalização : Gerência de Engenharia – Fundação Habitacional do Exército
Projeto de Paisagismo : Paula Farage e Vanessa Matos
Projeto de Cenotecnia : Cineplast – Sérgio Caliani
Projeto de Luminotecnia : Franco e Fortes Lighting Design – Gilberto Franco
Projeto de Estruturas : Engest Engenharia e Estrutura – Lucílio Antônio Vitorino
Projetos de Instalações Hidráulicas, Sanitárias, Elétricas e Eletrônicas : Cremasco Projetos de Instalações e Serviços Técnicos de Engenharia – Carlos Antônio Cremasco
Projetos de Ar Condicionado e Exaustão, Detecção, Combate a Incêndio : Air System – Ricardo Santos Dias Gibrail
Consultoria de Acústica: Conrado Silva de Marco
Painel Artístico : Mirella Marino
Programação Visual e Sinalização : Duo Arquitetura & Design – Carlos Eduardo Barros de Menezes, Sergio Moura Brasileiro do Valle, Tiago Rezende de Almeida Santos e Bruna Barbosa de Lima
Fotografia: Joana França e Leonardo Finotti
Construção: PaulOOctávio
Área Construída 27.630 m²
Área do terreno 15.000,00 m²
Concurso por convite: 2005
Desenvolvimento do Projeto 2005/2007
Período de Construção 2008/2010
____________________________________________________________________________________________
Agradecemos aos autores pela disponibilização do projeto para publicação






























Parabens aos projectistas. Belo projecto!
So tenho a chamar a atençao à questao da manutenção do edificio, especificamente: placas vermelhas de revestimento da fachada Norte e espelho d’agua.
Aos colegas que questionaram se trata-se de um concurso ou não, penso que é desnecessária esta pergunta, uma vez que o texto começa por dizer “Em concurso realizado em 2005, a FHE – Fundação Habitacional do Exército – escolheu esta proposta para a realização de sua sede…”.
Olhando as fotos por cima, na minha opinião, este projeto é um dos melhores que eu vi neste site. Parabéns
Cumprimentos aos colegas Danilo, Elcio, Fabiano, Filipe, Daniel e, in memorian o amigo Newton Godoy, assim como aos colaboradores de Arquitetura e complementares, pela bela obra.
Sinto-me particularmente feliz e com uma certa sensação de “dever bem cumprido” por ter participado da Comissão Julgadora da licitação (respondendo ao colega Simon, acima: Concurso, com nota predominante para técnica/qualidade e, adicional, para preço).
Excelente projeto. Parabéns.
é incrivel como corbusier está anos luz na frente. só ver chandigard e comparar. este projeto acima parece obra (excelente) de quarto ano de faculdade. mais careta só mesmo arquitetura paulista pós paulo mendes. the concrete box all over!
muito bacana! belas linhas, belas imagens, belas fotos! apesar do caráter de pavilhão, conseguiu, através do uso de vários elementos, cores e materiais diferentes quebrar a mesmice de muitos outros pavilhões que se espalham pelo brasil, principalmente Brasilia. Parabéns a todos e ao Danilo!
BELO PROJETO!
Parabéns aos autores.
Parabéns pelo projeto. Pergunto se foi um concurso privado, não lembro do IAB ter divulgado nacionalmente, apesar do carater eminentemente público da instituição Exército do Brasil.
Interessante a idéia de publicar obras construídas (já que os concursos raramente o são). Como podemos disponibilizar material para publicação?
Exemplar!Parabéns. Foi concurso?
uau