Expansão do Campus Santana do Livramento da UNIPAMPA – RS
______________________________________________________________________
Menção Honrosa
Ficha Técnica
Projeto: Expansão do Campus Santana do Livramento da Universidade Federal do Pampa –UNIPAMPA
Local: Santana do Livramento, RS
Ano: 2011
Área: 4300m²
Estúdio 41
Equipe: Emerson José Vidigal, Eron Danilo Costin, Dario Corrêa Durce
Colaboradores: Martin Kaufer Goic, Moacir Zancopé Junior.
______________________________________________________________________

Um conjunto de edifícios que respeite a história de sua cidade e potencialize a vida universitária. Uma arquitetura que construa com os vazios. Espaço gerado a partir da relação entre o edificado e o descoberto. Um lugar de convívio, encontro, trabalho e estudo, pensado para somar-se ao patrimônio arquitetônico da cidade de Santana do Livramento.
Um conjunto de edifícios não pode ser entendido somente como artefato tectônico, ou seja, como a composição de elementos construídos através da junção entre estrutura e as superfícies que conformam o espaço. Ele se define também na sua relação com o solo, no encontro entre a construção e a topografia.
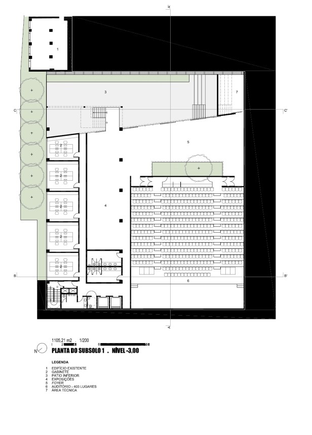
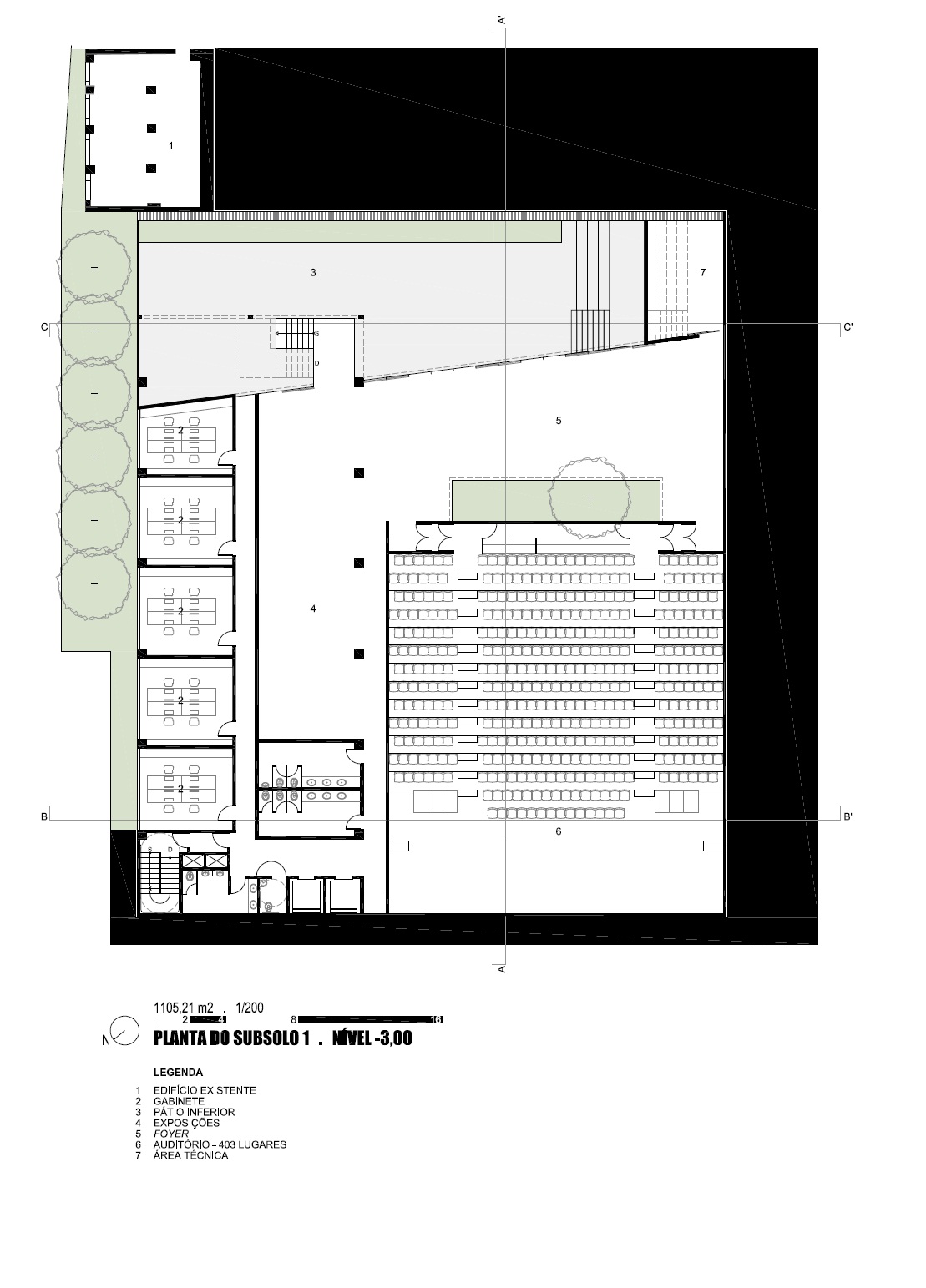
Projetando a topografia
A presente intervenção propõe a reconfiguração do nível do chão do pátio, projetando uma nova topografia através da retirada de solo do terreno. Essa retirada, além de permitir a manutenção de uma escala compatível entre as novas e as antigas edificações, procura aproximar-se da topografia original.
Os vazios gerados pela ação de escavação podem dar lugar a novos usos de duas maneiras: espaços construídos como: auditório, foyer, sala de exposições e gabinetes dos professores; espaços livres como: o pátio inferior
proposto para servir de extensão à área do foyer e o jardim contíguo aos gabinetes dos professores.
______________________________________________________________________
Agradecemos aos autores a disponibilização do material para publicação.

























Em termos funcionais, qualquer profissional consegue interpretar, mas a tentativa de criar uma linguagem arquitetônica diferente, no meu ver, passou longe. Não entendi como conseguiu menção honrosa!? acho que foi mais pela apresentação. Todos os concursos de arquitetura que eu vejo, é sempre a mesma forma adotada, sempre o mesmo critério associado a proposta construtiva tradicional. Onde estão os profissionais que exploram as tendências novas e as colocam na realidade brasileira? a arquitetura paramétrica que é uma tendencia forte e extremamente expressiva, não tem o traço, marca brasileira. E acredito que tem muito profissional por ai que domina essa vanguarda contemporânea que pouco está se manifestando. Acho que os concursos também são mais voltados para interesses políticos da classe A dessa profissão, e pouco se explora e se democratiza para dar acesso a bons profissionais de verdade. Ta quase se tornando um monopólio, uma industria de projetos que só servem de mera decoração. Estou desanimado com essa profissão.