Veja a seguir o projeto o escritório Una, um dos finalistas do concurso para o museu do Instituto Moreira Salles na Av. Paulista, em São Paulo.

Memorial
O Instituto Moreira Salles de São Paulo
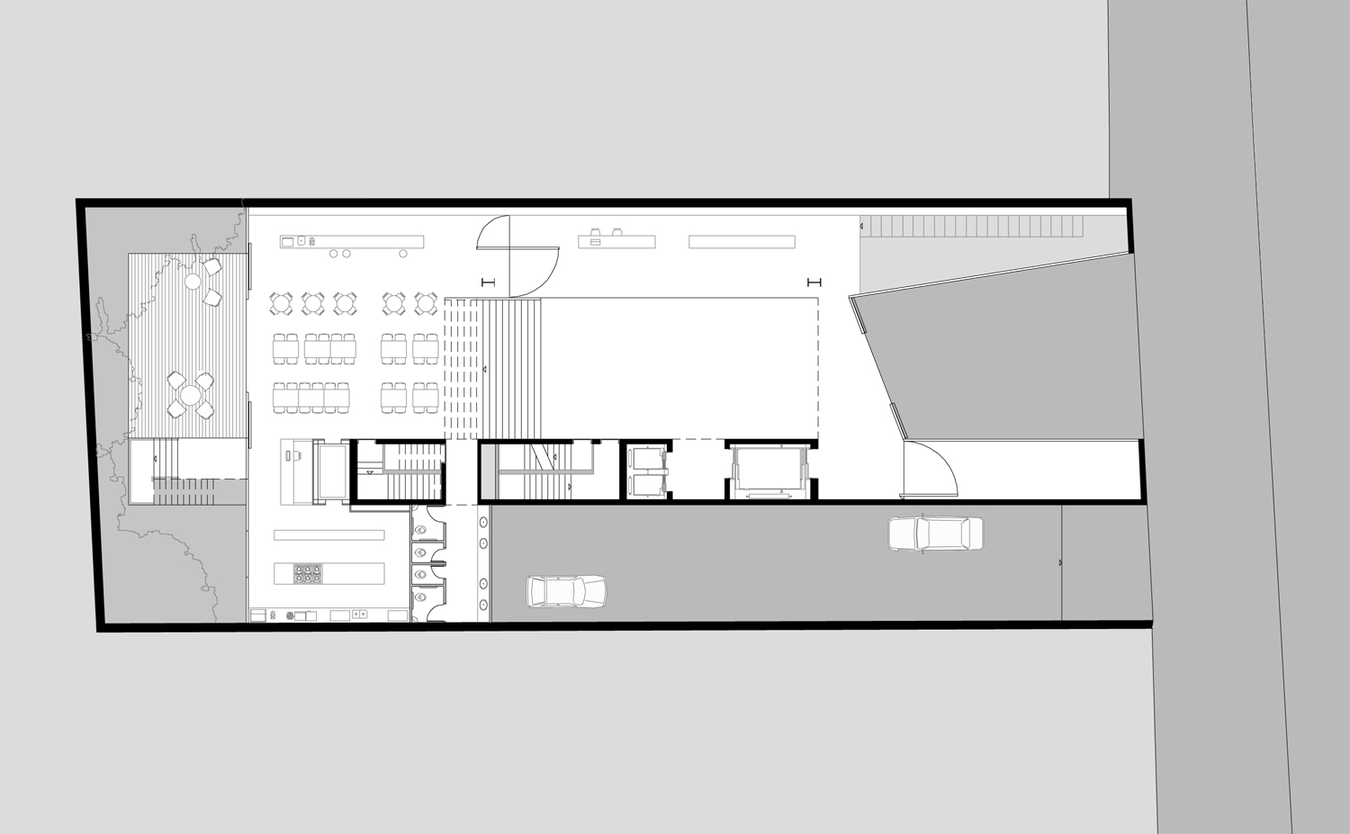
Como se fosse um aceno e um cumprimento, a alta laje do Instituto Moreira Salles de São Paulo se erguerá um tanto mais bem junto à calçada da Avenida Paulista, convidando quem passa a entrar. O grande volume do prédio do IMS se tornará, assim, mais leve e meio a pairar a uns dez metros do chão. A laje depois se torna reta e, ao fim, num segundo movimento, agora de descida, transforma-se no teto de um terraço onde haverá um café. A movimentação dessa grande lâmina propaga-se na forma de uma onda em profundidade. A visão em perfil pela qual também se mostra o movimento na arquitetura terá que ser percorrida. E é mesmo na forma de variados percursos conectados que o IMS se constituirá.
Ainda sob essa laje junto à calçada, um visitante, ou mesmo um passante curioso, poderá optar por dois caminhos. Por uma rampa de inclinação leve descerá para o térreo, para os elevadores, a livraria, o restaurante. Ou subirá para o café no terraço do mezanino, na outra opção de caminho para quem entra. Por duas rampas de asfalto que sobem pelas laterais do prédio, será possível contorná-lo por dois passeios, observando, quem sabe, a movimentação abaixo, até que ao fim do trajeto se chegue ao café.
Mas a esse também se chegará por uma larga e vazada escada que vai do interior do térreo para o mezanino exterior. Por essa escada os dois caminhos se conectam. Ou por uma escada menor no jardim que ficará ao fundo do terreno. Visto de cima desde o café, ou prolongando-se depois do restaurante que ficará além da grande escada, o pequeno jardim, com suas árvores, relva, esculturas, conformará um recanto sereno, bucólico talvez, a apenas quarenta metros da feérica Avenida Paulista e da laje do edifício que se alça, convidativa, mas também altiva, junto à calçada.
Talvez a curiosidade de quem passe se baste em olhar a imagem projetada no vidro frontal correspondente à altura do mezanino: o Pão de Açúcar por Marc Ferrez, uma fotografia de Robert Capa, ou uma imagem centenária da própria Avenida Paulista. Ou talvez olhe ainda mais para cima, pois nesse trecho avançado da laje haverá um grande vidro em que a atividade no foyer frente ao auditório trocará olhares com os olhares da avenida. Mas não só isso. O andar do foyer, de certo modo, resume o IMS. É lugar da palavra e também da imagem. Transforma-se num único espaço, abrindo-se as portas do auditório, ampliando o público de um filme ou de um debate, diluindo os limites que usualmente segregam espaços.
Diante de várias opções de percursos e visadas, o volume de treze metros de frente e aproximadamente quarenta metros tanto na profundidade quanto na altura, ainda que suspenso, talvez seja o que mais solicitará o olhar. Seus brilhos, suas sombras, seus tons diferentes, mas próximos, sua cor acinzentada, algo azulada, das placas de zinco revestirão o IMS numa segunda operação que fornecerá leveza ao prédio.
O zinco, além de anti-corrosivo e não poluente, também guarda por muitas décadas as cores de suas pré-pátinas. Ainda pouco usado verticalmente e em fachadas, tem uma longa tradição na cobertura de tetos. No Brasil, o teto de zinco é uma das principais soluções para recobrir moradias muito simples. Além de simples, são moradias pobres, mas não na estética da bricolagem que algumas tão bem revelam.
As fotografias de Elisa Bracher dessas moradias se assemelham muito à poética de suas gravuras que, por sua vez, se desdobraram em grandes lençóis de chumbo superpostos. A sua colaboração no projeto para o IMS paulista como desenhista de seus quatro revestimentos verticais veio, assim, de encontro tanto ao que se pretendia para revestir o prédio quanto a uma ampliação da escala, sempre buscada, se sua poética. Concebidos como grandes colagens de zinco, com alguns traços básicos e uma gradação de tons próxima entre as partes, e uma certa indefinição, lembram, por uma feliz coincidência, a que é considerada a primeira fotografia permanente do mundo, a feita por Niépce em 1826 do quintal de sua casa.
Também são fachadas e telhados que surgem na fotografia de Niépce. Tantas coincidências levam a pensar numa espécie de necessidade, não bastasse também o fato de que o IMS possui o mais importante acervo fotográfico da América Latina. Mas as fachadas em suaves contrastes das colagens de Elisa Bracher atendem também à contemporaneidade que se deseja para a arquitetura do IMS, rompendo uma continuidade visual que já foi quase obrigatória na arquitetura moderna entre o interior e exterior de uma obra. Aqui, ao contrário, a relação entre interior e exterior foi pensada como descontínua, numa compreensão dos espaços públicos como diferentes e contíguos e mantendo relações mais complexas do que o antigo ideal de uma continuidade visual tranqüila entre o fora e o dentro, o público e o privado.
Espaços públicos, é verdade, que não são necessariamente abertos. Um espaço é privado ou público pelo tipo de sociabilidade que promove. A rua, porém, e de um modo muito especial a Avenida Paulista, é um espaço público por excelência. E sua contemporaneidade se nota facilmente tanto pela avenida no nível dos prédios quanto na via expressa abaixo onde grafites revelam o quanto possui de opaco, de sobras quase anônimas, o urbanismo contemporâneo e a complexidade da sociedade que o habita.
Ao erguer o principal volume do IMS, procurou-se que a avenida adentrasse seus espaços, mas não por uma única forma que tudo concatenaria. Mesmo quando fechados os seus principais acessos, o passeio no nível do mezanino antes descrito ainda levará ao pequeno jardim ao fundo do terreno. Mas desde que se percorram os diferentes momentos que o compõem.
Essa abertura para a avenida não é, assim, da mesma natureza que a relação do IMS com os prédios vizinhos. Há vidro demais em São Paulo. Nas suas áreas administrativas, de ensino e pesquisa e também nas salas de exposição, o IMS não deixará de continuar a ser um espaço público, ainda que o seja de um modo mais intenso nas áreas expositivas. O fechamento do principal volume do edifício em relação aos prédios laterais é, deste modo, mais uma decisão de respeito mútuo, o que também é um valor público, do que um ensimesmamento.
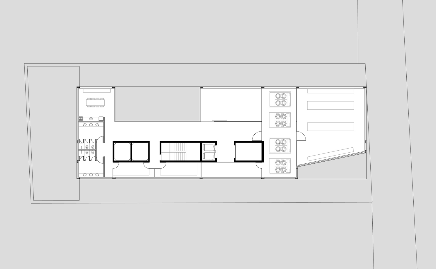
Não é preciso tantos vãos para se iluminar lugares de trabalho e pesquisa. É assim que os três andares mais altos do IMS, os administrativos e os de pesquisa e ensino, recebem metade de sua iluminação natural por vidros translúcidos num corte à frente e à esquerda do prédio. O que também gera uma varanda, espécie de mirante, no andar mais abaixo dos três, enquanto a outra metade é iluminada por vidros transparentes à direita e ao fundo, gerando também outra varanda, num trecho em que o IMS não ladeia com o prédio vizinho.
Já os andares de exposição, como é padrão, não possuem iluminação natural em dois deles, os mais altos, enquanto o terceiro possui um corte transversal que começa na fachada do edifico e que é mesmo uma de suas marcas mais evidentes. Também translucido, é um painel de vidro em diagonal a uma parte da sala de exposição, mas que também possui a opção de ser fechada por dentro. A iluminação natural, embora bela, faz muitas vezes ver repentinamente uma maior claridade que vem de fora do recinto. Usar ou não a iluminação natural é uma decisão que depende das obras expostas e não de um partido de projeto unívoco e que não se possa depois contornar.
Por seus diversos andares, mas também pela circulação em cada um deles e, sobretudo, entre eles, o IMS da Avenida Paulista será uma espécie de espiral, ascendente ou descendente, ou ambas, à escolha do visitante, que percorrerá praticamente todas as artes e que também abrigará diversas formas de ensino e debate. Com isso, é verdade, o IMS, ainda que abrigue tantas faces do espírito, não será, pois nada o é, uma sua síntese. Isso vai de si. Será apenas uma obra de arquitetura abrigando arte e cultura na vasta Avenida Paulista.
Mas esse “apenas” é na verdade um muito. É que o IMS paulistano será tanto um fato quanto um emblema. Situado na junção das linhas de trânsito que leva aos seus vetores mais dinâmicos, entre eles a própria Paulista, o IMS se erguerá num dos pontos mais sinérgicos da cidade de São Paulo e numa avenida, que por estar no alto e ser reta e altiva, os paulistanos elegeram como o coração da cidade e onde se comemora tudo que seja motivo para a cidade celebrar-se.
Não há espaço mais cidadão na cidade. E o aprofundamento da cidadania, por ser espaço de todas as artes, de pesquisa e debates culturais de forma continuada e sustentada faz do IMS algo de único no Brasil. Também não há lugar mais paulistano do que as cercanias do futuro IMS. Estará no coração geográfico, urbanístico e sentimental de São Paulo. Eis mais um acontecimento a celebrar. E, como de hábito entre os cidadãos paulistanos, só que de forma continuada e permanente ao longo tempo, a celebrar-se na própria Avenida Paulista.
Clique nas imagens a seguir para visualização ampliada:
FICHA TÉCNICA / Una Arquitetos
Cristiane Muniz, Fábio Valentim, Fernanda Barbara, Fernando Viégas
Com: Alberto Tassinari, Cristiano Mascaro e Elisa Bracher
Colaboradores: Ana Paula Castro, Carolina Clocker, Clóvis Cunha, Eduardo Martorelli, Enk te Winkel, Fabiana Cyon, Fabrice Zaini, Gabriela Gurgel, Hugo Bellini, Igor Cortinove, Marta Onofre, Miguel Muralha, Paula Saito, e Pedro Saito, Sílio Almeida.
Museologia e Conservação Preventiva: Gedley Braga
Estrutura: Companhia de Projetos
Instalações, telecomunicações, segurança, climatização, sustentabilidade e eficiência energética: Afaconsult
Luminotecnia: Lux Projetos
Fotos: Cristiano Mascaro
Maquete: Daniela Ferraz, Enk te Winkel, Jimmy Terán, João Toth e Paula Saito.
Vídeo: Outros Filmes (Otávio Cury)
Edição Final: Carina Bueno e Serguei Dias
Tradução: Glenn C. Johnston
Agradecimento: Hermelino Néder
____________________________________________________________________
Agradecemos aos autores pela disponibilização do material para publicação.
Veja aqui mais informações sobre o concurso e sobre o projeto vencedor.













































Os cortes evidenciam mais do projeto do que as próprias belas imagens dos ambientes internos. Como o diagrama faz ver, mover-se verticalmente é o que sustenta a bela aposta.