Como parte da seção Obras Construídas, publicamos o projeto do Museu Nacional de Ciência e Tecnologia, construído na Corunha, Espanha. O projeto é do escritório espanhol aceboXalonso. Chamamos a atenção em especial para o memorial descritivo, escrito pelos autores, que relata de forma coloquial e franca, no contexto da crise econômica da Espanha, os 10 anos de adversidades enfrentadas pelo projeto, entre o concurso (2001) e o final de sua construção (2011). Um edifício que mudou de programa e de nome, e que até o momento (fevereiro, 2012) não foi aberto ao público.

_________________________________________________________________________
MEMORIAL DESCRITIVO
(texto dos autores, traduzido pela editoria de concursosdeprojeto.org)
Resumindo uma longa história…
A história deste edifício começa muito antes do seu nascimento, há onze anos de fato, como o primeiro prêmio em um concurso internacional. No momento em que estamos escrevendo este texto, ainda não temos certeza de que o edifício será inaugurado algum dia. Talvez e com sorte, algo dia simplesmente entre em funcionamento, como aconteceu com a sede do Governode Tarragona, projeto de Alejandro de la Sota, diante da falta de ação dos representantes políticos, ou, talvez, continue fechado por mais alguns anos.
13 milhões de Euros, 10 anos e muita energia foram necessários para chegar ao ponto onde estamos. O que hoje chamamos o Museo Nacional de la Ciencia y Tecnología – MUNCYT – foi concebido em 2001 como Centro das Artes da Corunha (“A Corunã” na designação oficial da Galícia).
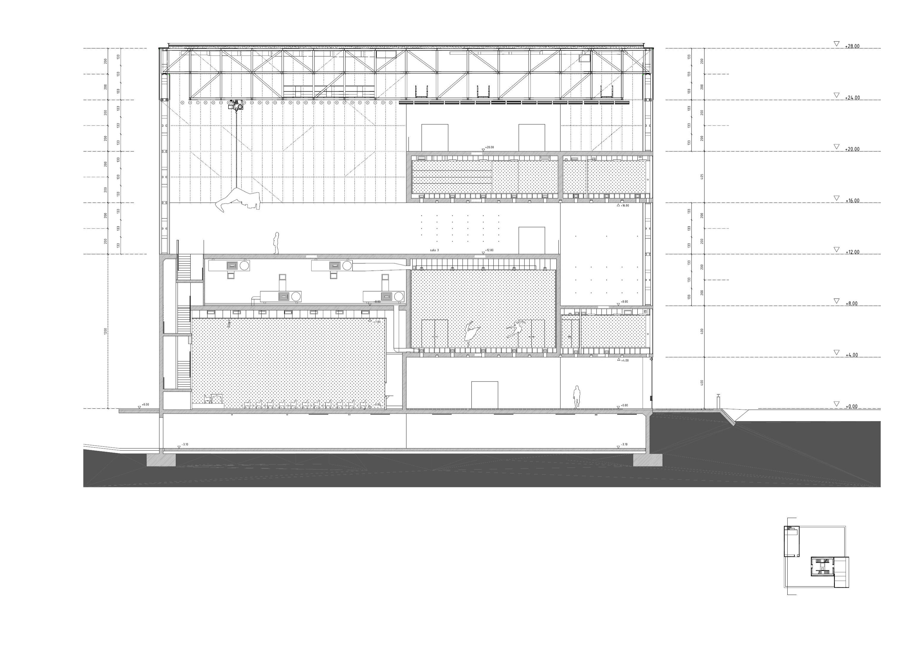
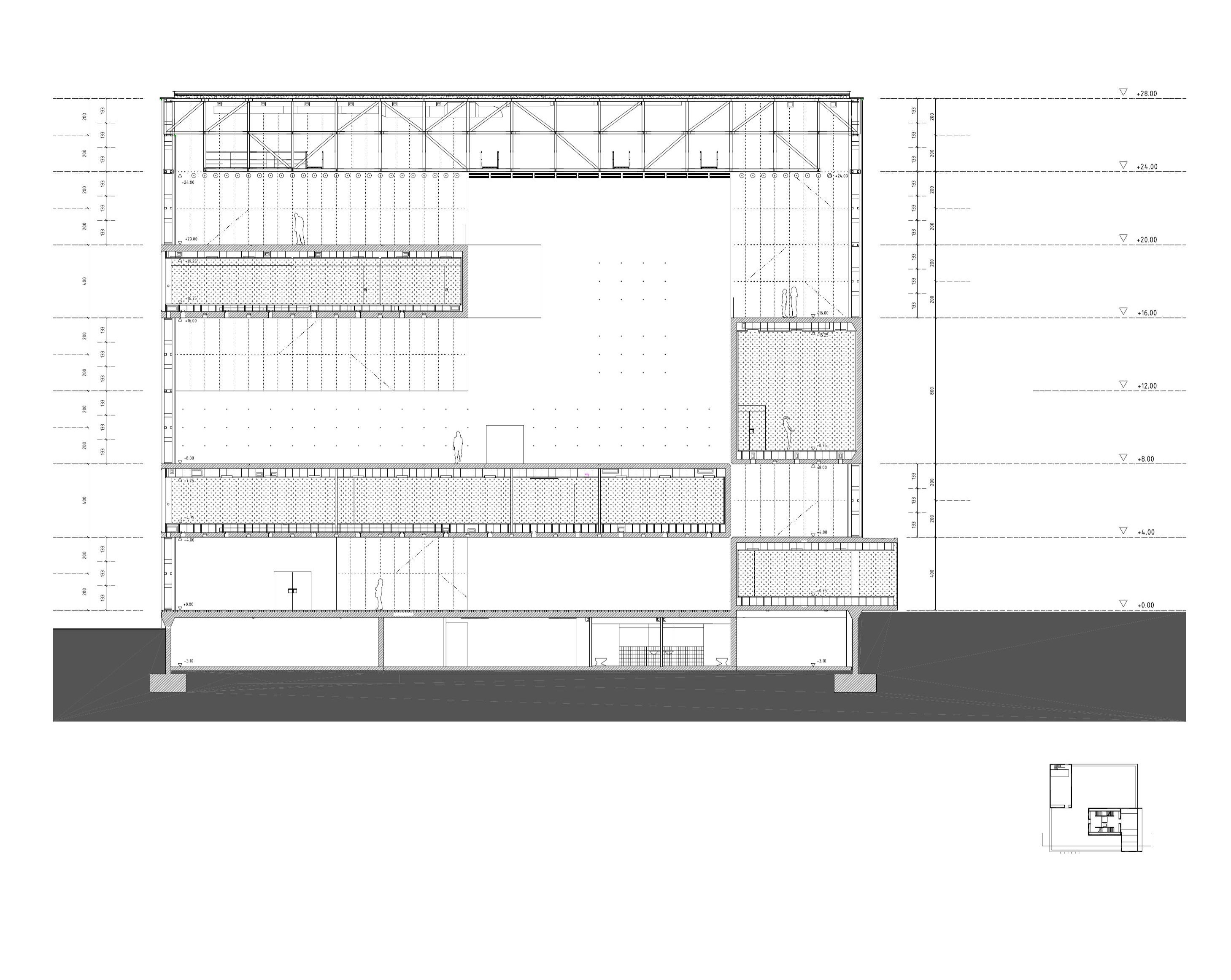
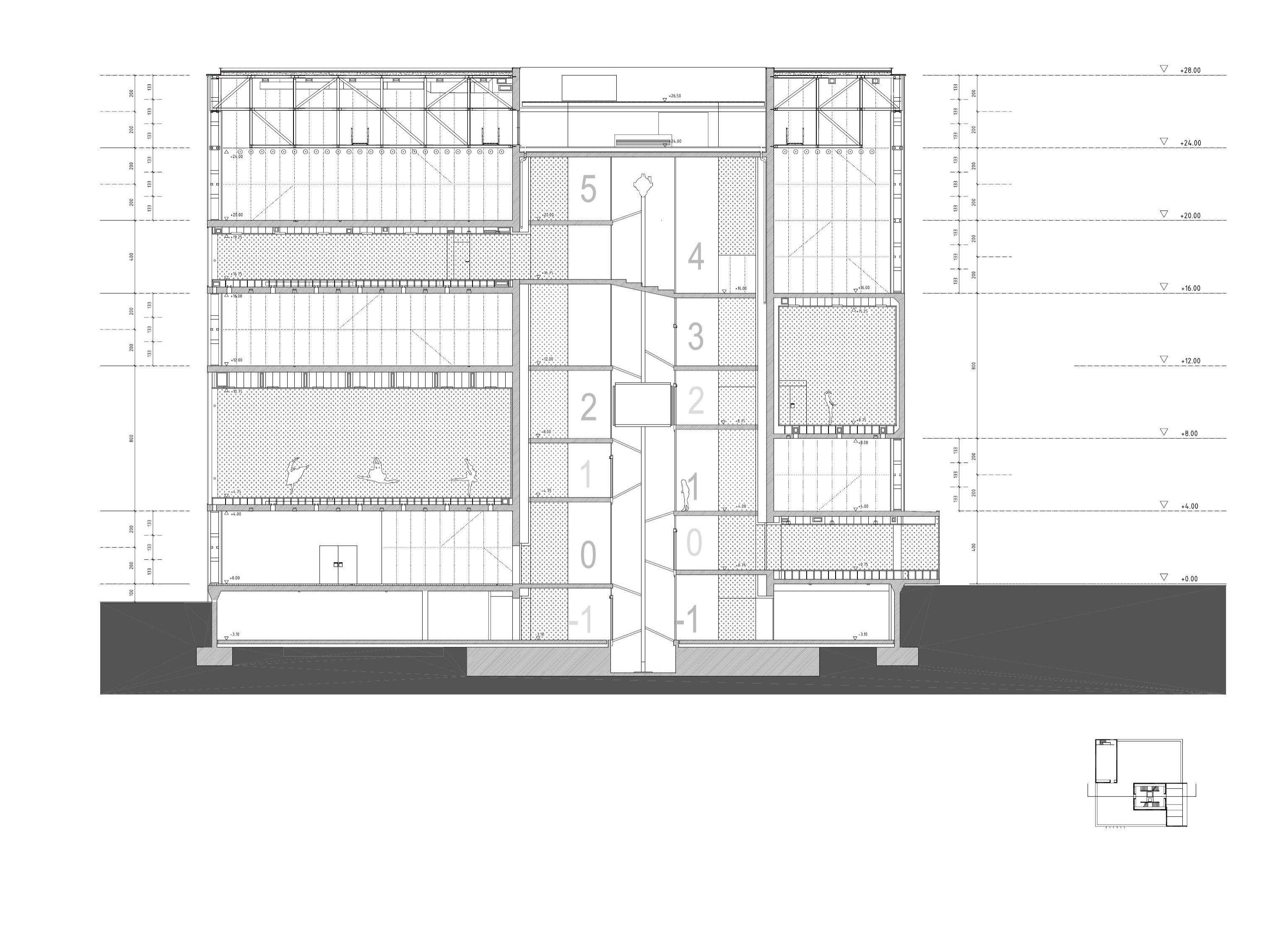
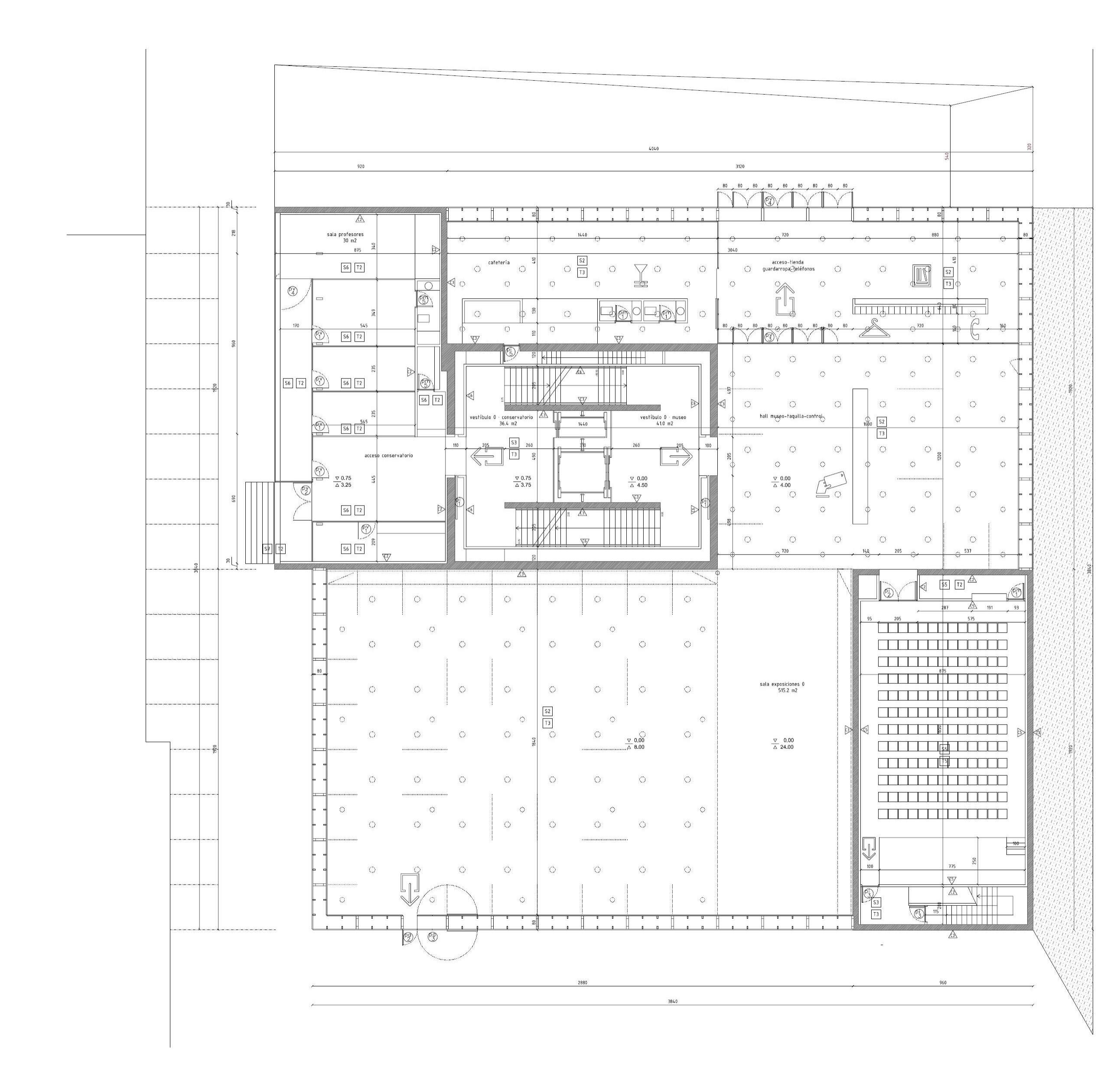
O Centro de Artes foi concebido como um único conjunto que deveria unir dois edifícios de naturezas distintas: a nova Escola de Dança e o Museu da Província da Corunha. Grande parte dos esforços de projeto focaram em determinar a identidade de cada uma das duas instituições e suas respectivas sedes que integrariam o Centro das Artes. Não poderia haver dúvidas ou mal-entendidos, uma vez que cada edificação tinha as suas características únicas do ponto de vista da representação funcional, programática e temporal e sobre o que caracterizava cada elemento.
Uma “árvore de concreto” que contém, em suas ramificações, a Escola de Dança. E em torno desse conjunto em forma de árvore, o Museu, entre o conjunto edificado e os limites do terreno. A forma estranha se destaca como protagonista do espaço do museu e define a relação entre o visitante e o lugar: IN significa que você está dentro da Escola de Dança; ON significa que você está no Museu; IN/ON. Duas fachadas distintas (vidro serigrafado e vidro comum), iluminação com duas temperaturas de cor (halógenas e fluorescentes), dois tipos de material (pesados/furos e leves/macios)… duas escadas formando um duplo helicoidal, garantindo total autonomia entre os visitantes e os estudantes.
Em 2003 começa a construção e a sorte se aliou ao edifício: uma boa construtora, a OHL e dois grandes técnicos do Conselho Provincial da Corunha, colaboraram com a equipe de arquitetos. Aqui começou a fase mais heróica e feliz desta história: a construção. Tratava-se de uma obra com grandes demandas tecnológicas, e foi executada com tamanha qualidade, que pode ser comparada com as obras da Europa Central. Foi usado pela primeira vez na Espanha, para essa obra, um concreto auto-adensável, que ainda não estava previsto nas normas de construção da Espanha, de forma que podemos considerar que se tratou de uma estrutura experimental. Foi desenvolvida também uma fachada de vidro laminado “solar” estrutural. No escritório, falávamos sobre “comportamento molecular”, referindo-se ao ambiente de “sinergia contagiosa” que havia se estabelecido. Total: 7.500 toneladas de concreto; 16.000 m2 de forma, 1.150.000 kg de aço, 1000 cilindros coloridos acústicos, cada um com 22cm de diâmetro e 1,25 m de comprimento, 15km de cabos e 3.750 painéis de vidro laminado serigrafado de 200×80 cm. O projeto foi finalizado com 95% de fidelidade em relação ao projeto original, sem imprevistos no orçamento (9 milhões de Euros). Em 2006 o edifício estava praticamente concluído. Naquele momento, o projeto foi exibido no MOMA, em Nova Iorque, e recebeu premiação na categoria Jovens Arquitetos, na IX Bienal de Arquitetura da Espanha.
Mas as mudanças políticas afetaram o seu destino, e a falta de definição sobre a ocupação do edifício deixou o edifício fechado por 1000 dias. Gatos e pássaros passaram a ser os habitantes do lugar, dando origem a três gerações de gatos felizes e pombos admiradores de nossa arquitetura. A poeira acumulou, os equipamentos enferrujaram; o edifício não ganhou vida e começou a ganhar uma aparência de sucata. Naquele momento fizemos de tudo para promover a utilização das edificações, mas ninguém da classe política queria assumir o desafio. Enquanto isso, o projeto foi amplamente publicado e divulgado, no país e no exterior.
Enquanto o tempo passava a sensação de vergonha ficava maior. Era necessário encontrar alguma solução. E a solução veio do Ministério da Ciência e Inovação, que precisava de uma sede para o Museu Nacional da Ciência e Tecnologia. A partir de então, passamos a nos referir ao conjunto edificado como: MUNCYT. O projeto de adaptação para o novo programa e as circunstâncias levaram ao fechamento do acesso original, levando-nos a criar uma entrada no lado oposto, por meio de uma grande abertura (4m x 8m) em uma parede de concreto. Foi necessário transformar a Escola de Dança (Conservatório) em uma edificação de apoio (Serviços Complementares) ao novo museu, assim como criar uma conexão com o outro edifício – demanda que não havia existido até então, no programa anterior. Não se tratava mais de dois edifícios independentes, mas de um edifício, com duas faces. Nesse momento, todos os esforços se concentraram na tentativa de manter a coerência, diante das decisões que estavam sendo tomadas pelos novos gestores do espaço. Cada pequena mudança provocava um conjunto de outras, em efeito dominó, levando ao reestudo dos sistemas de evacuação, assim como sobre a percepção do edifício na cidade. O escritório projetou mudanças nos espaços do entorno do edifício, mas a culminância da crise impediu a execução dos jardins e de elementos do mobiliário urbano.
O edifício estava finalmente saindo do pesadelo e pequenos empreendimentos e serviços, como cafés e restaurantes, começaram a surgir em seu entorno, atraídos pela eterna expectativa de inauguração do museu e encorajados pelas movimentações do Ministériio. Começaram a chegar alguns visitantes estranhos, como a cabine de um boeing 747 da Iberia, batizado de “Lope de Vega”, o mesmo avião que trouxe de volta em 1981 a Guernica, de Picasso, depois de 44 anos de exílio no MOMA de Nova Iorque. A fim de abrir caminho para colocar a “peça” dentro do edifício, assim como permitir o acesso do guindaste de 20 toneladas que foi necessário para carregar esse enorme objeto, foi necessário desmontar cerca de 25m2 de fachada, além de alguns pilares que precisaram ser cortados. Fato inusitado, que um edifício não projetado para aquela finalidade tivesse a capacidade de abrigar uma peça com tais dimensões. Tudo parecia ir bem, quando surgiu o Plano E (Plano Espanhol para estimular a economia e a geração de emprego, em 2009), que previa a promoção de pequenos projetos, de rápida execução: 7 escritórios foram contratados, para 7 projetos de museologia, para um espaço concebido como único e total.
A última vez em que estivemos no local foi há um ano. Recebemos essas imagens de fotógrafos que estiveram no local e visitaram o edifício. Foi a primeira vez que vimos as luzes da edificação acesas. Enfim, acreditamos que apesar das circunstâncias descritas, o edifício tem demonstrado um alto grau de resiliência, o que nos faz acreditar que irá sobreviver aos desafios futuros.
Veja a seguir vídeo sobre o projeto:
Muncyt from 24studio on Vimeo.
Clique na galeria a seguir para a visualização ampliada das imagens.
_________________________________________________________________________
Ficha Técnica
Arquitetura: aceboXalonso – – Victoria Acebo e Ángel Alonso
Concurso: 2001
Projeto Executivo: 2002
Início da construção: 2003
Projeto de Alteração – MUNCYT – 2009
Projeto dos espaços exteriores: 2010
Finalização da obra: Agosto de 2011
Equipe de colaboradores:
– NB35 (Engenharia Estrutural)
– JG (Engenharia de Instalações)
– Construção: OHL Galicia (Ricardo Buján e Arturo Lombera)
– Fernando Cebrián ( Arquiteto Provincial ) e José Yañez ( Arquiteto Técnico Provincial )
_________________________________________________________________________
Agradecemos aos autores pela disponibilização do material para publicação.
















































Otimo, material..
Acho muito interessante alunos de arquitetura poderem ter acesso a este tipo de material.