3° Lugar – JAJA
_________________________________________________________________________
(Clique na galeria para visualização ampliada das imagens.)
Memorial Descritivo
(trecho de memorial descritivo, extraído de Archdaily.com – traduzido pela editoria de concursosdeprojeto.org)
O projeto propõe a ampliação do parque existente no local, valendo-se da qualidade natural do meio para a dinamização dos espaços da biblioteca. Considerando que a biblioteca estará situada em uma cidade densamente povoada, a oportunidade de trazer o verde para o edifício proporciona uma experiência agradável e única para os visitantes.
O edifício é constituído por pavimentos que “flutuam” em meio a uma “floresta de colunas”, diluindo a transição entre o exterior e o interior. Os balanços da estrutura definem o espaço público, gerando espaços abrigados para eventos fora da biblioteca, como feiras de livros e exposições ao ar livre.
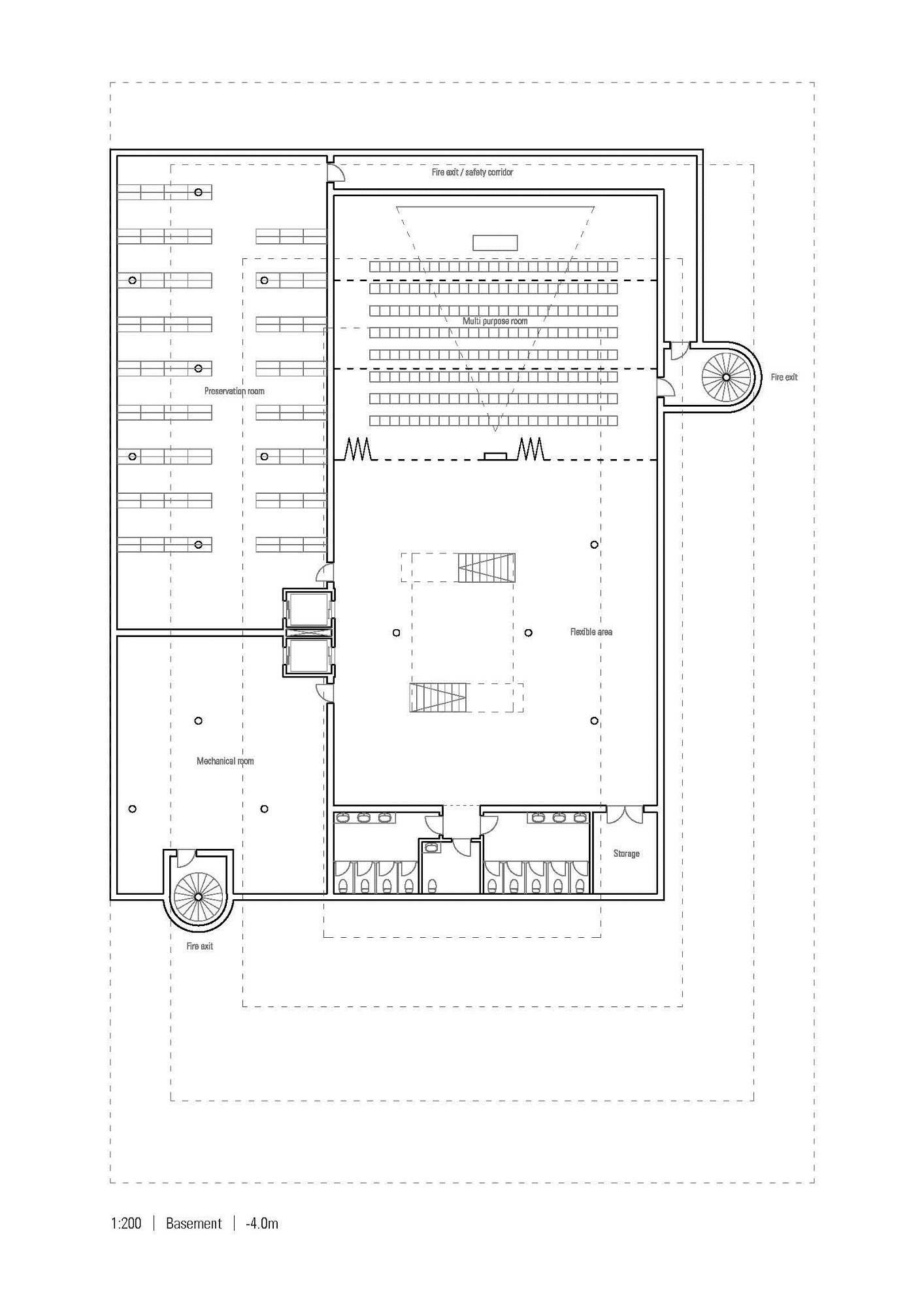
No interior, o aspecto funcional da biblioteca propõe um ambiente interno marcado pela presença de milhares de livros, criando uma qualidade visual atemporal, definindo a biblioteca como um lugar especial para a aprendizagem e o compartilhamento do conhecimento. Para maximizar o efeito, a coleção da biblioteca envolve a totalidade de um espaço central.
Em razão da luminosidade e da sensação de abertura do edifício, as árvores se tornam um cenário de cor e luz que irão brilhar através dos espaços interiores. No que se refere aos sistemas de condicionamento térmico, a biblioteca é baseada em soluções passivas e usufrui do sombreamento oferecido pelas árvores.
A integração entre o edifício e a natureza, tanto sob o ponto de vista estético quanto funcional, permite que a arquitetura se adapte ao local e ofereça uma experiência particular aos usuários da biblioteca.
_________________________________________________________________________
Fonte: archdaily
























